EasyManua.ls Logo

Jayco COVE 2002 - Brakes; DC Fuse Panel Layout

Jayco COVE 2002
131 pages
Print Icon
To Next Page IconTo Next Page
To Next Page IconTo Next Page
To Previous Page IconTo Previous Page
To Previous Page IconTo Previous Page
Loading...
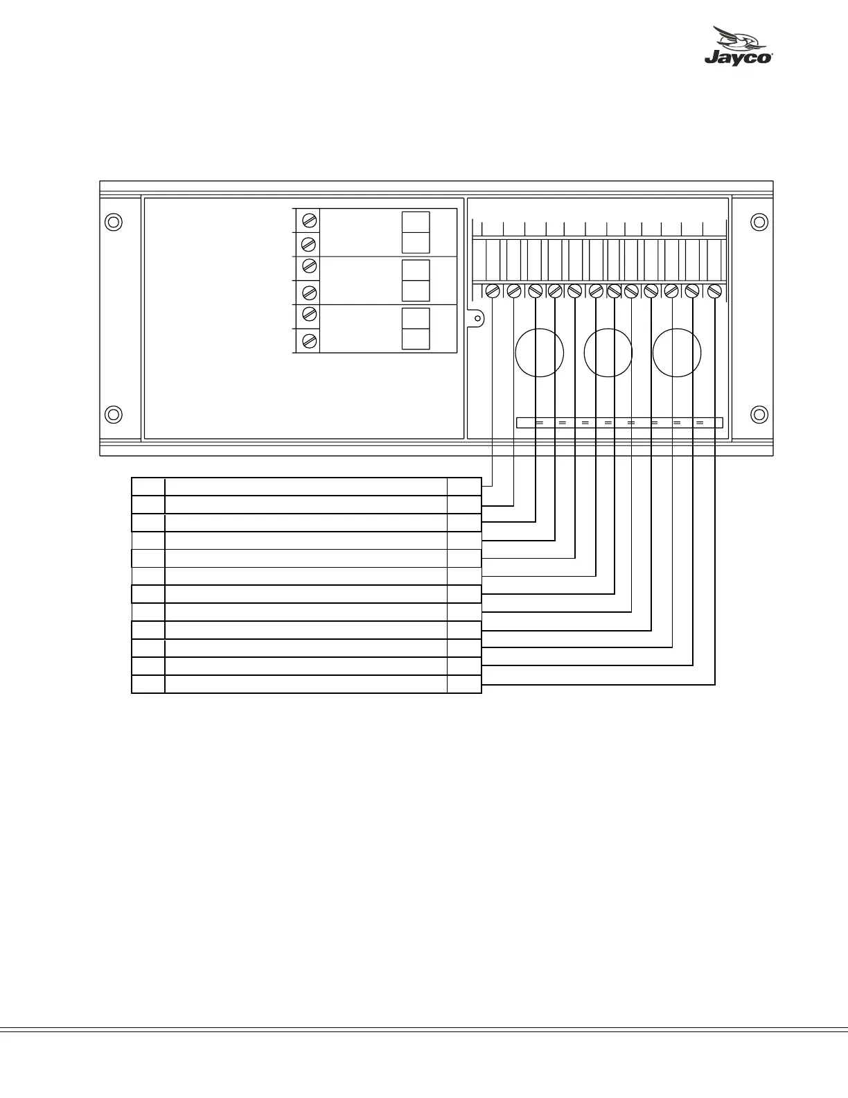
DC Fuse Panel Layout
NOTE: Below is a typical wiring layout.
Brakes
The electric brakes operate on 12 volt DC power from tow vehicle through blue and white wires on 7
way pigtail and harness. More information on the brakes is found in the chapter on transporting the
trailer.
The Systems 41
1
2
3
4
5
6
7
8
9
10
11
12
15
15
15
15
15
15
Opt.
Opt.
Opt.
N/A
N/A
N/A
Refer to 120-volt
AC System
for this layout
Bath
Pump/Monitor Panel/Range Hood
Refrigerator/Furnace
Bedroom Lights
TV/Radio
Ceiling Lights
Optional
Optional
Optional
Slideout Lights
Electric Slideout - Bedroom (Option)
Electric Slideout-Living Room (Option)
Fig. 4-29

Table of Contents

Related product manuals