EasyManua.ls Logo

Jayco Heritage - Page 32

Jayco Heritage
87 pages
Print Icon
To Next Page IconTo Next Page
To Next Page IconTo Next Page
To Previous Page IconTo Previous Page
To Previous Page IconTo Previous Page
Loading...
23
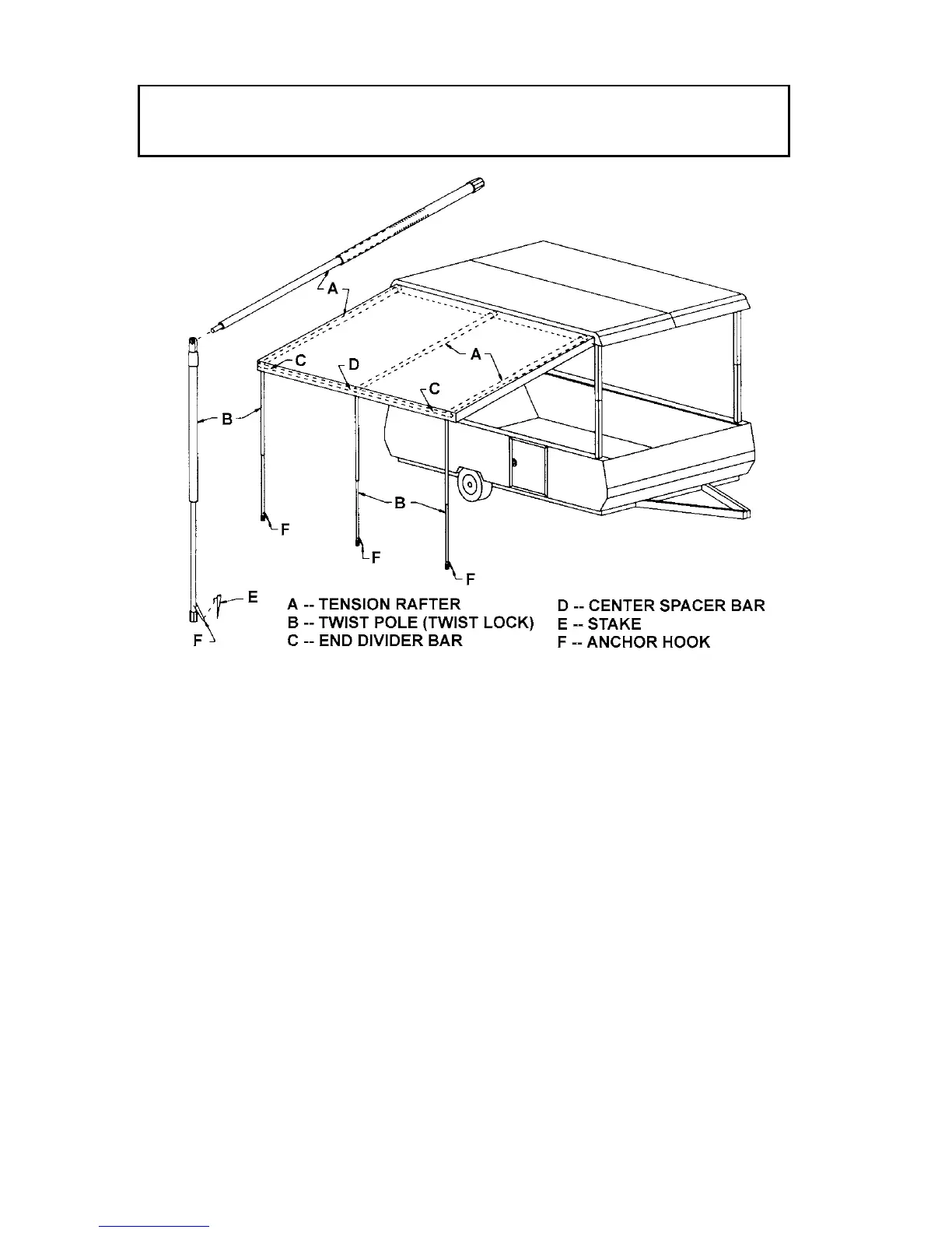
CAUTION: Always install the stakes to avoid wind damage to the poles and the
fabric. In severe wind it is best to remove the canopy. Wind and rain damage are not
covered by warranty.
Fig. 3-6

Table of Contents

Related product manuals