EasyManua.ls Logo

JLA SD35 - Page 7

JLA SD35
30 pages
Print Icon
To Next Page IconTo Next Page
To Next Page IconTo Next Page
To Previous Page IconTo Previous Page
To Previous Page IconTo Previous Page
Loading...
113538-7 Telephone 01422 822282 7
NOTE: The manufacturer reserves the right to make changes in specifications at any time without notice or obligation.
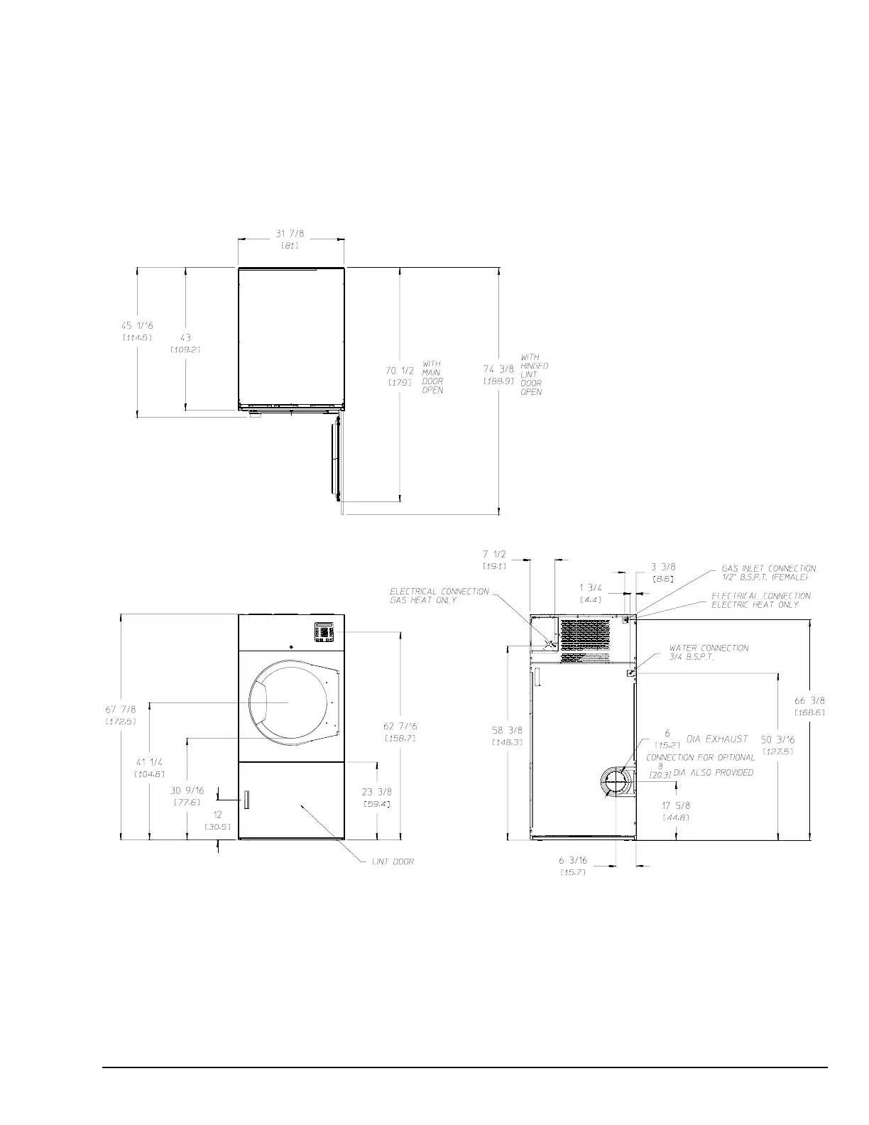
SD35 Specifications _______________________________________________________________

Related product manuals