EasyManua.ls Logo

Johnson Controls Facility Explorer FX60 - Page 6

Johnson Controls Facility Explorer FX60
22 pages
Print Icon
To Next Page IconTo Next Page
To Next Page IconTo Next Page
To Previous Page IconTo Previous Page
To Previous Page IconTo Previous Page
Loading...
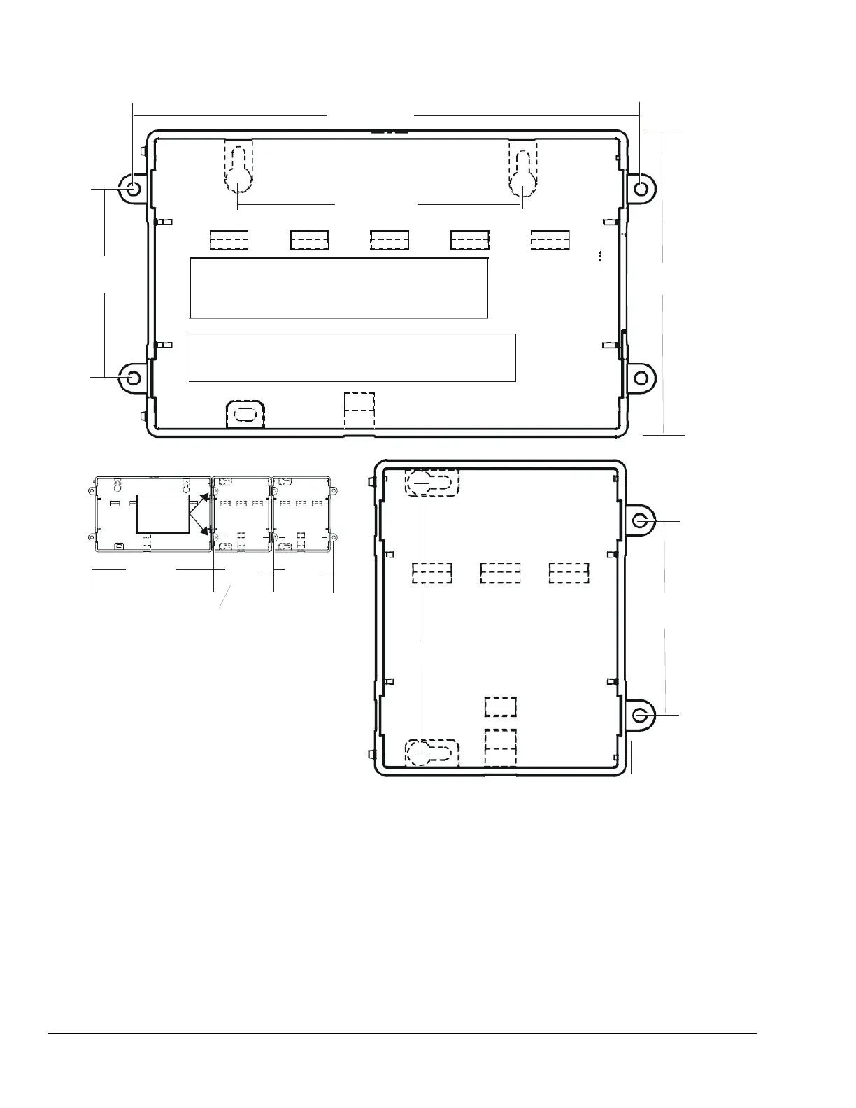
6 FX20/60 Supervisory Controllers Installation Instructions
0.170 in. Diameter
(4.32 mm)
FX-20/60
Electronic and printed versions of this document may not show
the dimensions to scale. Verify all measurements before drilling.
Note:
DIN mounting is recommended over tab mounting.
2.50 in.
(63.50 mm)
3.75 in. (95.25 mm)
6.719 in. (170.66 mm)
4.00 in.
(101.6 mm)
2.50 in.
(63.50 mm)
2.50 in.
(63.50 mm)
6.719 in.
(170.66 mm)
3.25 in.
(82.55 mm)
3.25 in.
(82.55 mm)
Distance between center of tabs
from one unit to another unit.
TIP: If mounting accessory modules, future removal
or replacement of the FX-20/60 is simplified if you
do not install screws in the accessory module side
tabs of the controller (see above).
FX-20/60
NDIO-16
NDIO-16 or
LP-FXPM
Acc essory
module
side tabs
NDIO-16
Figure 2: Tab Mounting Dimensions, in. (mm)

Related product manuals