EasyManua.ls Logo

Johnson Controls IOM3723 - Page 3

Johnson Controls IOM3723
14 pages
Print Icon
To Next Page IconTo Next Page
To Next Page IconTo Next Page
To Previous Page IconTo Previous Page
To Previous Page IconTo Previous Page
Loading...
Mount the expansion module in an area
free of corrosive vapors and observe the
Ambient Conditions requirements in Technical
specifications.
Provide for sufficient space around the
expansion module for cable and wire
connections for easy cover removal and good
ventilation through the expansion module (50
mm [2 in.] minimum on the top, bottom, and
front of the expansion module).
Do not mount the expansion module on
surfaces prone to vibration, such as duct work.
Do not mount the expansion module in areas
where electromagnetic emissions from other
devices or wiring can interfere with expansion
module communication.
Observe these additional guidelines when mounting
an expansion module in a panel or enclosure:
Mount the expansion module so that the
enclosure walls do not obstruct cover removal
or ventilation through the expansion module.
Mount the expansion module so that the power
transformer and other devices do not radiate
excessive heat to the expansion module.
Do not install the expansion module in an
airtight enclosure.
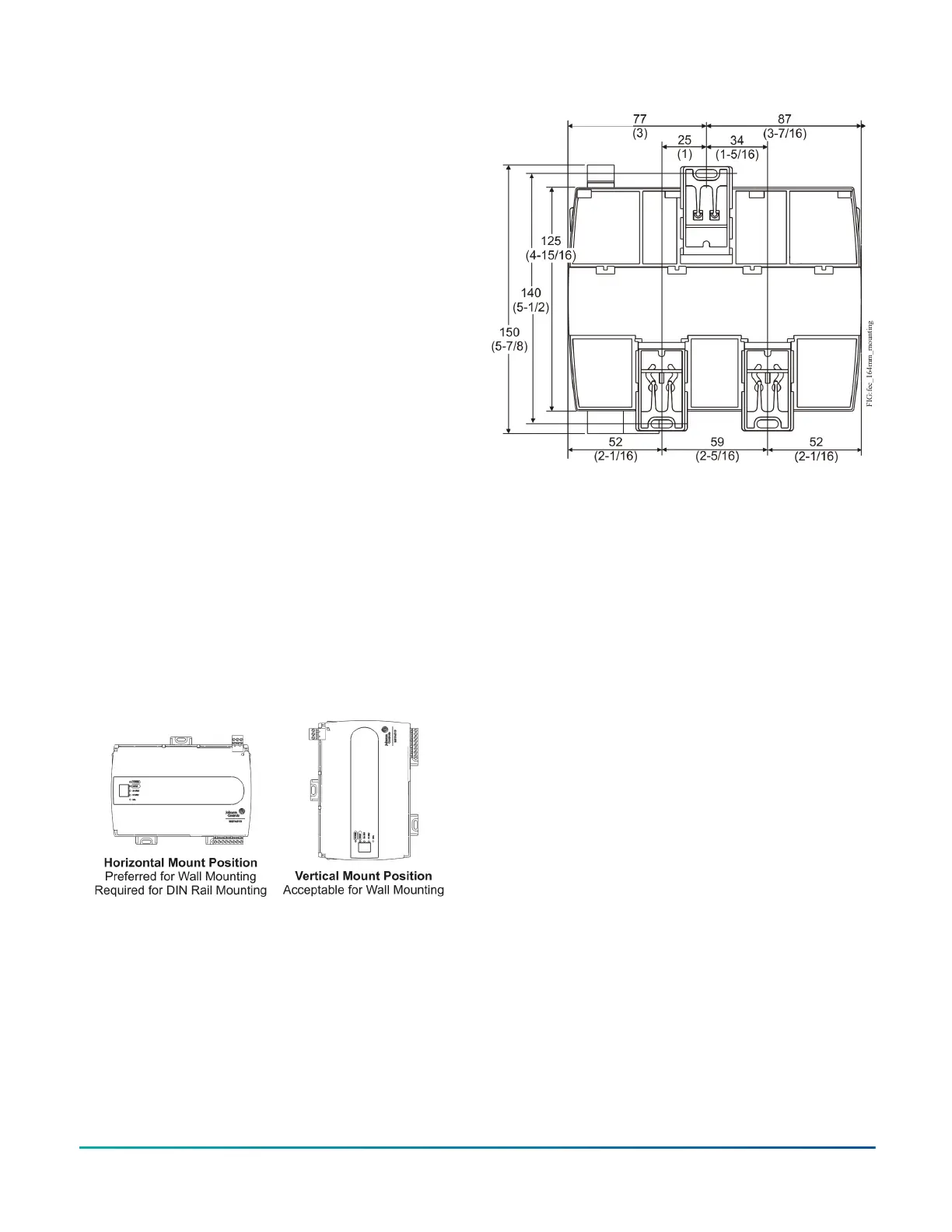
Figure 2: Mounting positions
Mounting features and dimensions
See the following figure for mounting dimensions
listed in millimeters and inches. Inches are listed
in parenthesis. The following figure also illustrates
the DIN rail channel and the mounting clips in an
extended position.
Figure 3: Back of expansion module
DIN rail mount applications
About this task:
Mounting the expansion module horizontally on 35
mm (1.4 in.) DIN rail is the preferred method.
To mount an expansion module on a 35 mm DIN
rail, complete the following steps:
1. Securely mount a 20 cm (8 in.) or longer
section of 35 mm (1.4 in.) DIN rail, horizontally
and centered in the desired space.
2. Pull the two bottom mounting clips outward
from the expansion module to the extended
position.
3. Hang the expansion module on the DIN rail by
the hooks at the top of the (DIN rail) channel
on the back of the expansion module, and
position the expansion module snugly against
the DIN rail.
4. Push the bottom mounting clips inward (up)
to secure the expansion module on the DIN
rail.
To remove the expansion module from the
DIN rail, pull the bottom mounting clips
out to the extended position and carefully
lift the expansion module off the DIN rail.
Wall mount applications
About this task:
IOM3723 Input/Output Module Installation Guide 3

Related product manuals