EasyManua.ls Logo

Johnson Controls ZU Seies - ZUT06 through T12 Unit Accessory Weights; ZUT06 through T10 Physical Dimensions

Johnson Controls ZU Seies
75 pages
Print Icon
To Next Page IconTo Next Page
To Next Page IconTo Next Page
To Previous Page IconTo Previous Page
To Previous Page IconTo Previous Page
Loading...
5566218-TIM-B-1118
10 Johnson Controls Ducted Systems
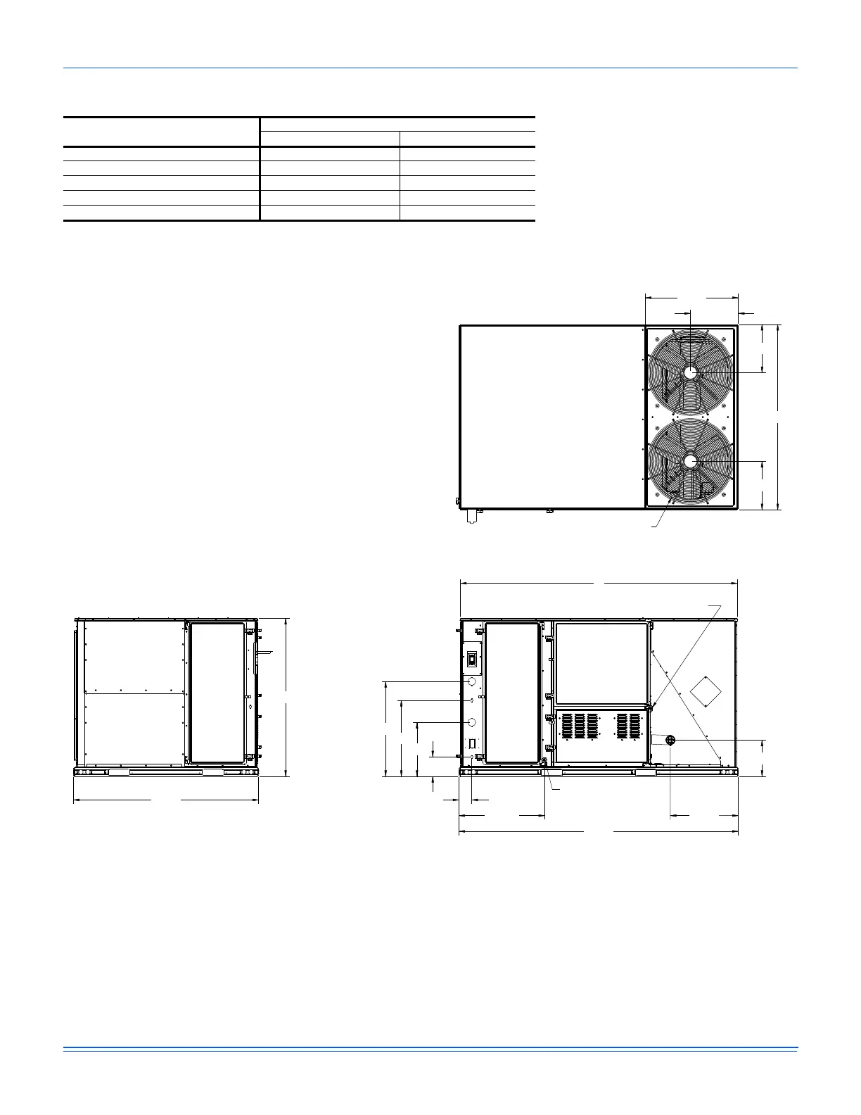
Figure 8: ZUT06 through T10 physical dimensions
Table 4: ZUT06 through T12 unit accessory weights
Unit accessory
Weight (lbs.)
Shipping Operating
Economizer 90 85
Power exhaust 40 35
Electric heat
1
1. Weight given is for the maximum heater size available (54KW).
49 49
Gas heat
2
2. Weight given is for the maximum number of tube heat exchangers available (8 tube).
110 110
Variable frequency drive
3
3. Weight includes mounting hardware, controls, and the manual bypass option.
30 30
LEFT
A
59.00
C
D
E
F
4.19
27.31
89.00
21.19
11.38
15.38
59.00
15.38
29.69
15.25
FRONT
SEE DETAIL B
FOR DRAIN LOCATION
SEE DETAIL A FOR GAS INLET
B
2X Ø 24.38

Table of Contents

Related product manuals