EasyManua.ls Logo

Johnston CN101 - Rear Lighting System Circuit

Default Icon
62 pages
Print Icon
To Next Page IconTo Next Page
To Next Page IconTo Next Page
To Previous Page IconTo Previous Page
To Previous Page IconTo Previous Page
Loading...
Page Issue A
Chapter - Electrical System 3:5
CN101 - Maintenance
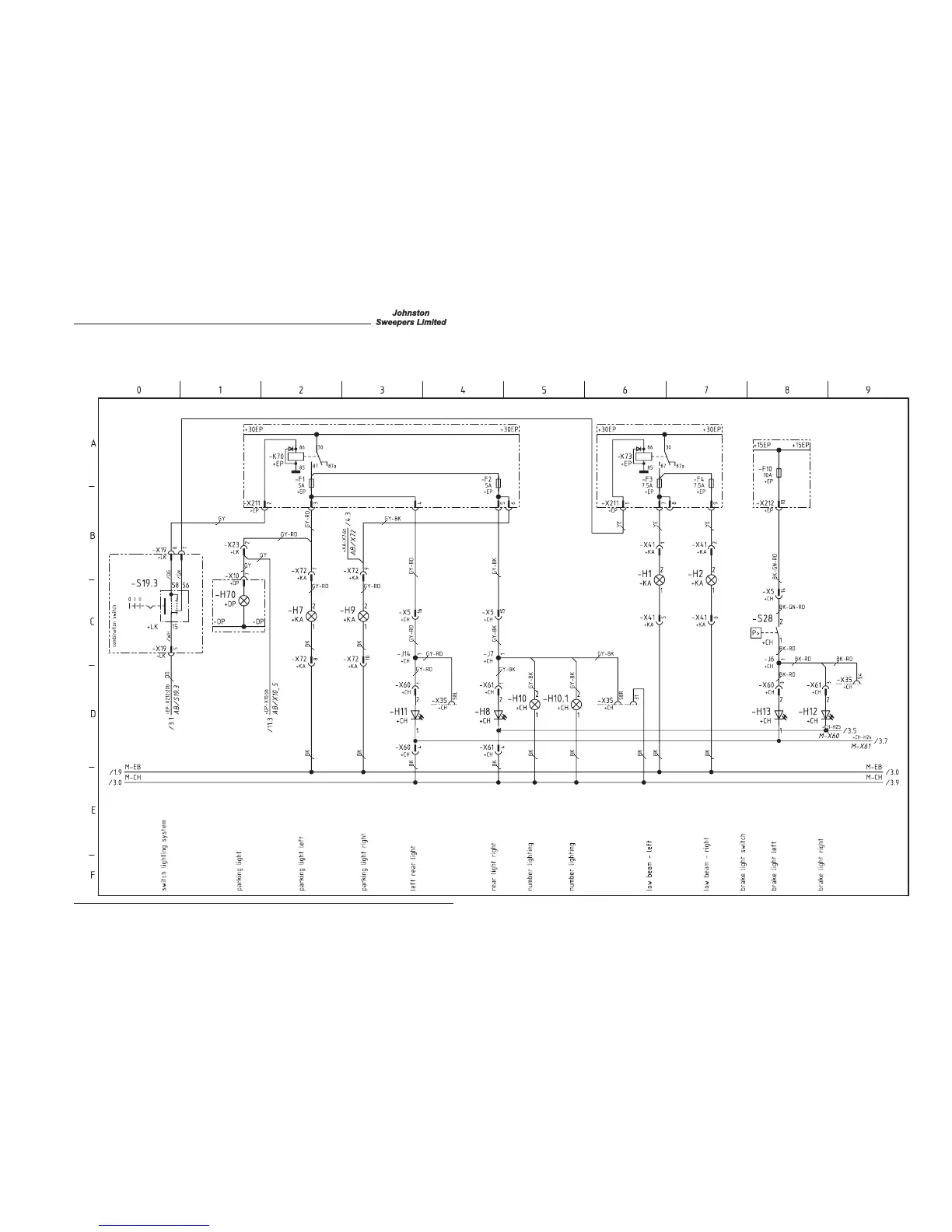
Rear Lighting System Circuit
(drawing reference: 7013052, Sheet 2 - Issue D)
All Copyright and rights are the property of Johnston Sweepers Ltd.

Related product manuals