EasyManua.ls Logo

Johnston CN101 - ECU Controller Circuit

Default Icon
62 pages
Print Icon
To Next Page IconTo Next Page
To Next Page IconTo Next Page
To Previous Page IconTo Previous Page
To Previous Page IconTo Previous Page
Loading...
Page Issue A
Chapter - Electrical System 3:15
CN101 - Maintenance
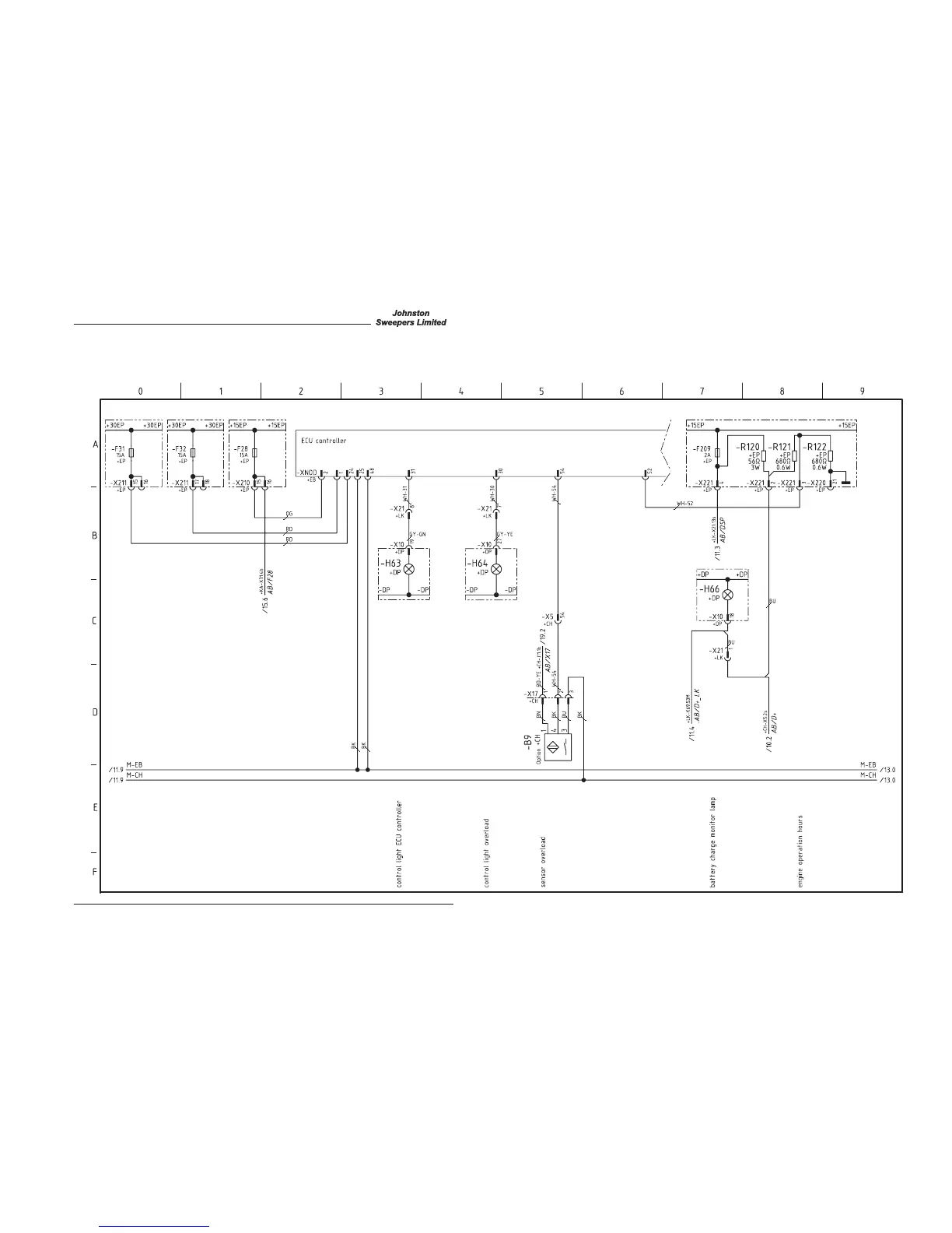
ECU Controller Circuit
(drawing reference: 7013052, Sheet 12 - Issue D)
All Copyright and rights are the property of Johnston Sweepers Ltd.

Related product manuals