EasyManua.ls Logo

JUKI LK-1900A - LK-1903 A Button Clamp Lift and Work Clamp Pressure Adjustments

JUKI LK-1900A
83 pages
Print Icon
To Previous Page IconTo Previous Page
To Previous Page IconTo Previous Page
Loading...
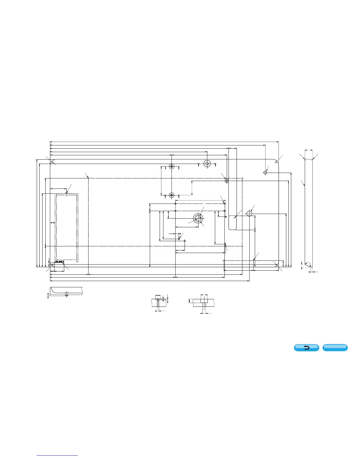
(2) Lateral installation type table (Part No. 40006887)
21
50
199
810
657.5
257
1046
155 133.5
25
85
637
290
±0.5
42936.5
824
1130
1200
263.5
120
18.5
48.7
259.8
ø26
ø8.5
ø36
ø16
10
R2
40
500
456
±0.5
283
35
14
75
197
30.5
175.6
40
148
158.8
38297
75.5
±0.5
151±0.5
10
110
360
390
547
570
R30
R30
ø38
R30
R30
4-R10
Z
Z
Y
Y
Y
Y
20
8
1
6
77
q
w
t
r
e
y
i
o
!0
!1
!2
!3
Z-Z Y-Y (x2)
u
!3
!4
q 4- drilled hole 2, 10 deep on the rear
side (Stand installing hole)
w Drawer stopper installing position
One place on the rear side
e JUKI logotype
r Drilled hole 8
t Drilled hole 9, 20 spot face 17 deep
y 4- drilled hole 8
u Drilled hole 30, 51 spot face 16 deep
i Oil drain funnel installing hole
o 3- drilled hole 7, 6 deep
!0 Drilled hole 17
!1 Drilled hole 28
!2 2- drilled hole 2, 10 deep on the rear
side (Power switch installing hole)
!3 R2 (all corners)
!4 Right side
Contents

Table of Contents