DCBA
4
5
3
2
1
DCBA
4
5
3
2
1
4-384-37
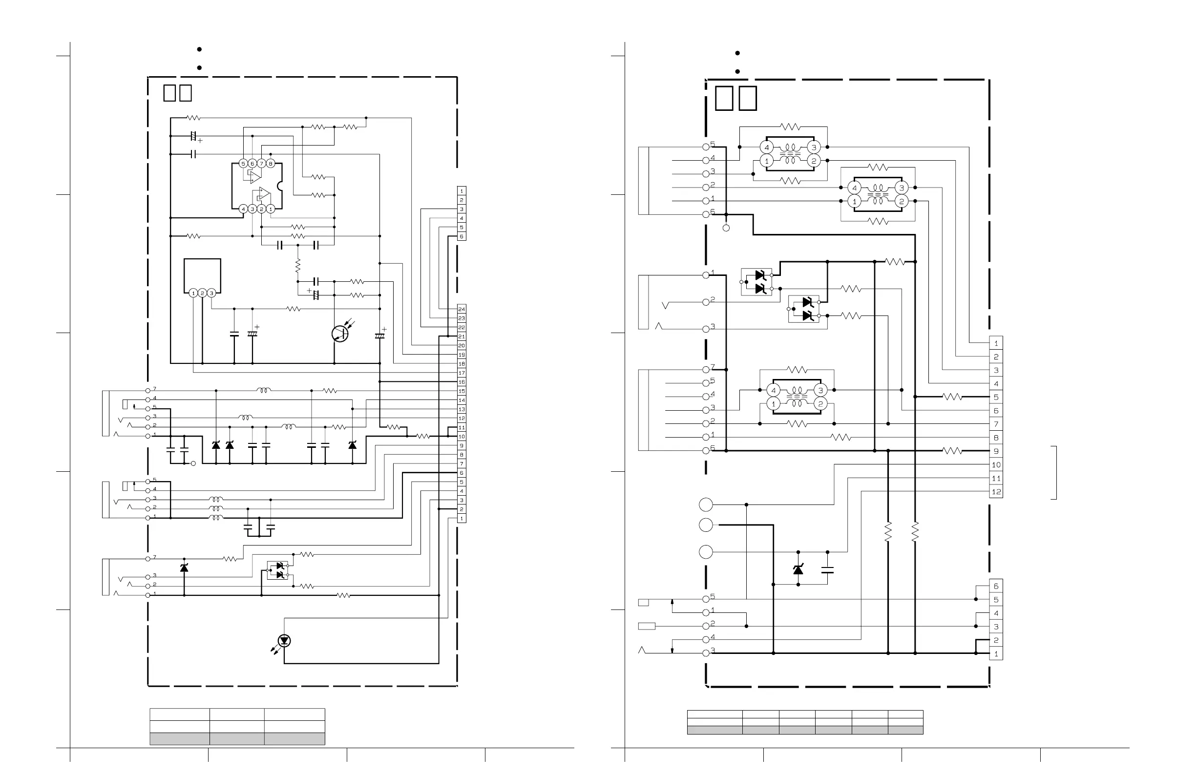
JACK SCHEMATIC DIAGRAM4.19 REAR SCHEMATIC DIAGRAM4.20
J501 L501
IC501
C502
C501
R501
J502
J503
R502 R503
R504
R505
R506
C504
L502
R519
R508
C503
R509
R510
L506
C505
C506
L505
L504
C516
C517
C507
R511
R507
R520
R515
R516
R518
R517
Q501
D504
R512
C509
C508
L503
R513
D505
R514
D506
C514C512
C511C510
C515C513
D502
D503
TL501
IC502
D501
CN502
CN501
0.1
3.3
10k
680k 1.8k
2.2k
10k
820k
0.015
0Ω
68k
0.015
8.2k
0Ω
10
3k
100k
0Ω
220
0Ω
330
47
22
100
100
0.01 0.01
NQR0251-004X
BA10358F-X
/10
PEMC1203
NQR0251-004X
/10
QNS0078-001
RPM-22PB
MA8068-X
/6.3
NQR0251-004X
MA8068-X
EMZ6.8N-X
MA8068-X
RPM7138-V4
IR SENSOR
SML-010LT-X
IR_AMP
REG_4.8V
IR_OUT
IR_RMC
GND
REM_OUT
JLIP_RX
JLIP_TX
GND
TALLY
CAM_SW_A
CAM_SW_B
CAM_SW_C
AV_GND
EM_DET
EX_MIC/R
EX_MIC/L
EM_GND
AV_GND
GND
AU_SIG/R
AU_SIG/L
P_DET
V_OUT
GND
CAM_SW_C
CAM_SW_B
CAM_SW_A
NC
NC
T
#
#
T
#
#
T
T
JLIP
AV
OUT
∗
∗
R
L
VccGND
JACK
TO
ROTARY ENCODER
MIC
∗
∗
∗
∗
∗∗
∗∗
06
∗
y40092001a_rev0.0
VEE
Vcc
W/B SENSOR
TALLY LAMP
TO MAIN IF
CN102
NOTE : The parts with marked ( ) is not used.
∗
# EXCHANGE PARTS LIST
Without DSC MODEL
With DSC MODEL
J552
QNS0152-001
∗
J553
∗
QNZ0497-001
R555, R556
330
∗
R557~R559
∗
0Ω
D551, D552
EMZ6.8N-X
∗
NOTE : The parts with marked ( ) is not used.
∗
J502
With MIC JACK
Without MIC JACK
∗
NQR0251-004X
L504 ~ L506
∗
# EXCHANGE PARTS LIST
QNS0005-001
CN552
J554
J552
CN551
R564R563
J553
R562
TL551
TL552
TL553
R555
R556
R559
D551
R561
R557
R558
D552
L553
L552
R560
TL554
J551
R551
R552
R553
R554
L551
0Ω
0Ω
0Ω
0Ω
0Ω
0Ω
GND
GND
ADP_DC
ADP_DC
BATT_+
BATT_+
QGA1002F1-06X
QNA0027-001
#
TPA+
TPA-
TPB+
TPB-
GND
USB_DN_RX
USB_DP_TX
USBSENSE
GND
BATT_CHK
T_BATT
ADP_H
QGF0507F3-12X
#
#
#
#
#
#
#
#
QNZ0557-001
#
#
#
#
#
#
#
#
#
BATT_TERM.
∗
∗
+
DC_JACK
PC
USB
-
T
REAR
∗
∗
TO MAIN IF
CN103
TO MAIN IF
CN104
DV
∗
∗
07
y40094001a_rev0.0
C551
0.1
D553
MA8068-X
TO
MAIN IF
CN103
(N.C)
When ordering parts
,
be sure to order according to the Part Number indicated in the Parts List.
For the destination of each signal and further line connections that are cut off from
this diagram
,
refer to "4.1 BOARD INTERCONNECTIONS".
NOTES :
When ordering parts
,
be sure to order according to the Part Number indicated in the Parts List.
For the destination of each signal and further line connections that are cut off from
this diagram
,
refer to "4.1 BOARD INTERCONNECTIONS".
NOTES :