EasyManua.ls Logo

JVC GR-DVP5 - Page 99

JVC GR-DVP5
104 pages
Print Icon
To Next Page IconTo Next Page
To Next Page IconTo Next Page
To Previous Page IconTo Previous Page
To Previous Page IconTo Previous Page
Loading...
EN 99
Master Page: Right
GR-DVP7-5EG_80-103.fm Page 99
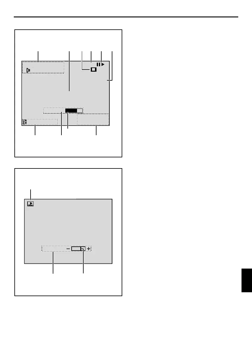
LCD Monitor/Viewfinder Indications During Video Playback
a Sound Mode Indicator ( pg. 50)
b Blank Search Indicator ( pg. 23)
c Thumbnail storing indicator ( pg. 59)
(Appears while the captured image is being stored
as a thumbnail image in the memory card.)
d Tape Speed ( pg. 43)
e U : Playback
5
: Fast-Forward/Shuttle Search
3
: Rewind/Shuttle Search
9 : Pause
9 U : Forward Slow-Motion
Y 9 : Reverse Slow-Motion
D : Audio Dubbing
9D : Audio Dubbing Pause
(Appear while a tape is running.)
f Sound Input For Audio Dubbing ( pg. 70, 71)
g Date/Time ( pg. 48, 51)
h •VOLUME : Volume Level Indicator (Speaker or
headphone) ( pg. 22)
(The level indicator g moves.)
•BRIGHT : Brightness Control Indicator (LCD
monitor/Viewfinder) ( pg. 13)
(The level indicator g moves.)
i Time Code ( pg. 48, 51)
LCD Monitor/Viewfinder Indications During D.S.C. Playback
a Operation Mode Indicator ( pg. 31)
b Brightness Control Indicator (LCD monitor/
Viewfinder) ( pg. 13)
(The level indicator g moves.)
1
L
2
B
2
I
0
T
:
/
2
S
B
V
1
O
L
O
:
U
A
L
2
N
N
U
5
D
K
M
1
E
SEARC
H
1
0
P
0
1
1
0
.
:
0
0
2
0
S
.
MIC
1
2
4
5
6
7
g
3
89
BR I GHT
1
2
g
GR-DVP7-5EG_80-103.fm Page 99 Tuesday, March 26, 2002 3:10 PM

Table of Contents

Related product manuals