3
*
2
Before checking the operation of this unit prior to
installation, this lead must be connected, otherwise power
cannot be turned on.
*
2
!"#$%&'()*+,-.$/012345
!"#$%&'(
*
2
°ËÕπ°“√µ√«®Õ∫°“√∑”ß“π¢Õß™ÿ¥ª√–°Õ∫π’ȰËÕπ∑’Ë®–µ‘¥µ—Èß
µÈÕßµËÕ“¬µ–°—Ë«π’ȰËÕπ ¡‘©–π—Èπ®–‰¡Ë“¡“√∂‡ª‘¥‡§√◊ËÕ߉¥
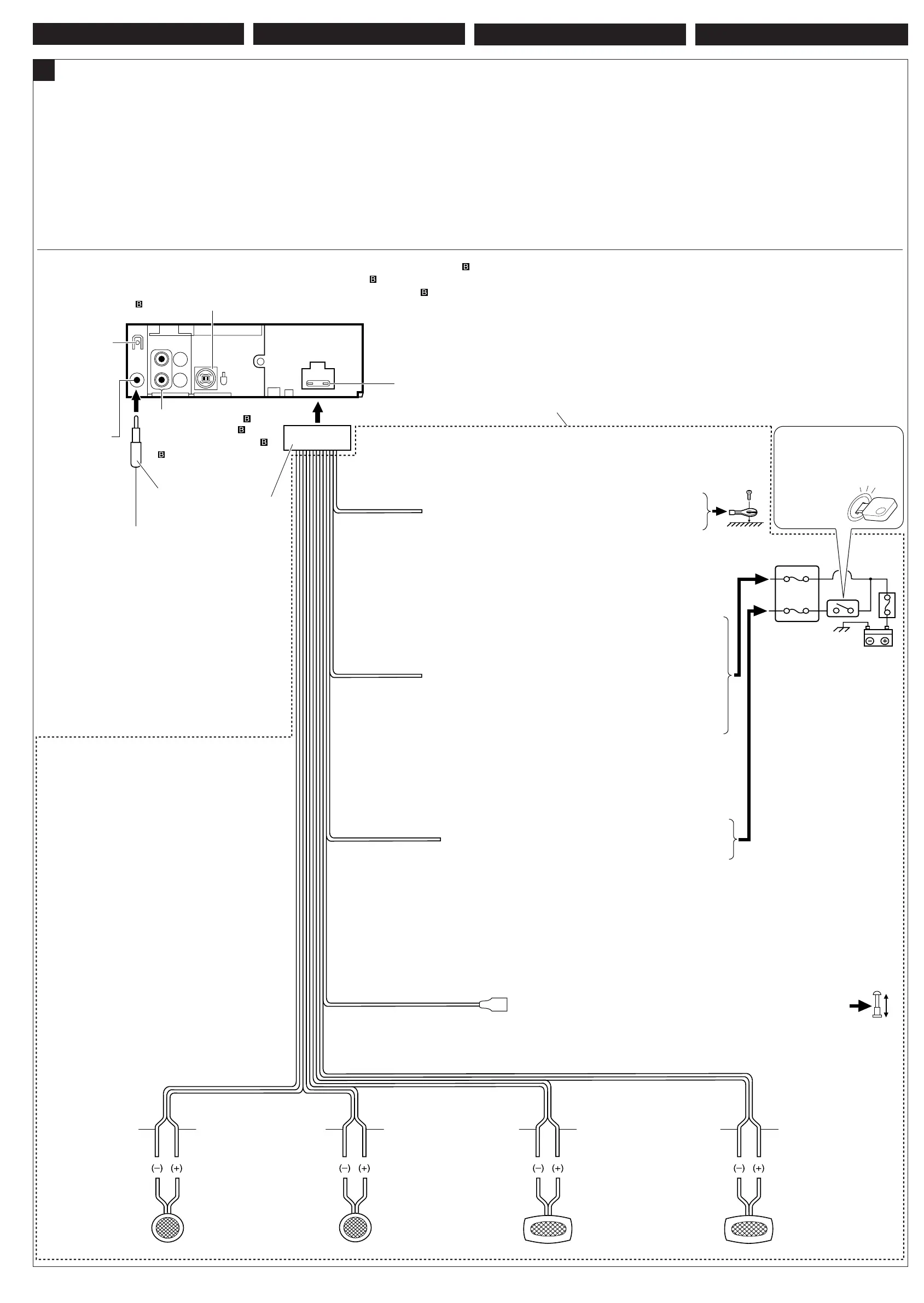
15 A fuse
15 A
ø‘«Ï¢π“¥ 15 A
Yellow*
2
*
2
’‡À≈◊Õß*
2
Blue with white stripe
!"#$
’πÈ”‡ß‘π≈“¬¢“«
Red
’·¥ß
Fuse block
!"
·ºßø‘«
To a live terminal in the fuse block connecting to the car battery
(bypassing the ignition switch) (constant 12 V)
!"#$%&'()*+ !"#$,-./012
!"#$%&'()=
12 V
µËÕ°—∫¢—È«∑’Ë¡’°√–·‰øøÈ“„π·ºßø‘«Ï ´÷ËßµËÕ°—∫·∫µ‡µÕ√’Ë√∂¬πµ
(‚¥¬‰¡ËµÈÕß„™È«‘∑™Ï®ÿ¥√–‡∫‘¥) (
12 ‚«≈∑ϧß∑’Ë)
To metallic body or chassis of the car
!"#$%&'
µËÕ°—∫‚§√ß‚≈À–À√◊Õ‡™´‘¢Õß√∂¬πµÏ
*
1
Not included for this unit
*
1
!"#$
*
1
‰¡Ë‰¥È„ÀÈ¡“°—∫™ÿ¥ª√–°Õ∫π
Black
’¥”
To an accessory terminal in the fuse block
!"#$%&'()*
µËÕ°—∫¢—ȫ˫πª√–°Õ∫„π·ºßø‘«
Gray with black stripe
!"#$
’‡∑“·∂∫¥”
White
’¢“«
White with black stripe
!"#$
’¢“«·∂∫¥”
Green with black stripe
!"#$
’‡¢’¬«·∂∫¥”
Gray
’‡∑“
Green
’‡¢’¬«
Purple with black stripe
!"#$
’¡Ë«ß·∂∫¥”
Purple
’¡Ë«ß
To the remote lead of other equipment or automatic antenna if any (200 mA max.)
!"#$%&'()*+,-.*/01234 200 mA
µËÕ“¬°—∫Õÿª°√≥ÏÕ◊ËπÀ√◊Õ‡“Õ“°“»Õ—µ‚π¡—µ‘∂È“¡’ (¢π“¥Ÿßÿ¥ 200 mA
)
Before connecting: Check the wiring in the
vehicle carefully. Incorrect connection may
cause serious damage to this unit.
The leads of the power cord and those of the
connector from the car body may be different in
color.
1
Connect the colored leads of the power cord
in the order specified in the illustration
below.
2
Connect the antenna cord.
3
Finally connect the wiring harness to the unit.
Line out (see diagram
)
!"#$%&
“¬ÕÕ° (Line out) (¥Ÿ·ºπ¿Ÿ¡
)
A
Left speaker (rear)
!"#$%
≈”‚æß´È“¬ (À≈—ß)
Right speaker (front)
!"#$%
≈”‚æß¢«“ (ÀπÈ“)
Left speaker (front)
!"#$%
≈”‚æß´È“¬ (ÀπÈ“)
Right speaker (rear)
!"#$%
≈”‚æß¢«“ (À≈—ß)
Ignition switch
!
«‘∑™Ï®ÿ¥√–‡∫‘¥
Only for KD-G455: To CD changer jack or another external component (see diagram
)
=KD-G455: =CD !"#$%&'=( !
KD-G455 ‡∑Ë“π—Èπ: ™ËÕ߇’¬∫µËÕ¢Õ߇§√◊ËÕ߇≈Ëπ´’¥ CD ≈À–Õÿª°√≥Ï¿“¬πÕ° (¥Ÿ·ºπ¿Ÿ¡
)
Typical Connections / !"#$ / °“√‡™◊ËÕ¡µËÕ·∫∫ª°µ‘ /
1
2
*
1
*
1
1
2
3
4
5
3
15
Antenna terminal
!
¢—È«“¬Õ“°“»
‰∑¬
ENGLISH
!"#$%&'()*+%,&
!"#$%&'
!" #$%!&'(" )*+,-.
!"
1
!"#$%&'()*+,-./+0
2
!" #$%&'
3
!"#$%&'&()*+
°ËÕ•∑”°“•‡™•ËÕ¡µËÕ : µ•«®†Õ•°“•‡¥‘•†“¬‰ø„•••¬•µÏլ˓ߕ–¡—
¥•–«—լ˓„ÀȺ‘¥æ•“¥„•°“•‡™•ËÕ¡µËÕ™ÿ¥ª•–°Õ•™ÿ¥•’
°“•‡™•ËÕ¡µËÕº‘¥æ•“¥Õ“®∑”„Àȇ°‘¥§«“¡‡†’¬À“¬•È“¬·•ß°—•™ÿ¥ª•–
°Õ••’ȉ¥È“•µ–°—Ë«¢Õ߆“¬‰ø ·•–¢ÕßÕÿª°••ϵËÕ‡™•ËÕ¡®“°µ—«•
ß••Õ“®¡’†’∑’ˉ¡Ë‡À¡•Õ•°—•
1
µËÕ“¬‰ø’µ“¡≈”¥—∫∑’Ë√–∫ÿ„π√Ÿª¥È“π≈Ë“ß
2
‡™◊ËÕ¡µËÕ°—∫“¬Õ“°“»
3
ÿ¥∑È“¬ µËÕË«π§«∫§ÿ¡°“√‡¥‘𓬉ø‡¢È“°—∫™ÿ¥ª√–°Õ∫™ÿ¥π’È
WOł–uLM« öOu²«WOł–uLM« öOu²«
WOł–uLM« öOu²«WOł–uLM« öOu²«
WOł–uLM« öOu²«
∫q?O?u?²?UÐ ¡b³« q³∫q?O?u?²?UÐ ¡b³« q³
∫q?O?u?²?UÐ ¡b³« q³∫q?O?u?²?UÐ ¡b³« q³
∫q?O?u?²?UÐ ¡b³« q³…—U?O??« w? „ö?Ýô« WJ³ý s bQð
Ê« s?J?1 Æ“U?N?'« qOuð WOKLŽ w QDš Àb×¹ ô v²Š WbÐ
Æ“UN−K wIOIŠ qDŽ ‰uBŠ v« ¡vÞU)« qOu²« V³¹
qu*« pKÝË WOzUÐdNJ« WUD« pKÝ Êu nK²¹ Ê« sJ1
Æ…—UO« qJO¼ Êu sŽ
±±
±±
±
WOzUÐdNJ« WUD« pK W½uK*« „öÝô« qË«
ÆqHÝô« w œułu*« rÝd« w ·uu*« VOðd²UÐ
≤≤
≤≤
≤
qË«Æwz«uN« pKÝ
≥≥
≥≥
≥
qË« ¨«dO𫯓UN'« l „öÝô« qUŠ
błË Ê« wJOðUuðËô« wz«uN« Ë« dšô« “UN−K bFÐ sŽ rJײ« pKÝ v«
©dO³« wKO ≤∞∞ bŠ vB«®
w½bF*« …—UO« qJO¼ Ë« w½bF*« r'« v«
«—Ëd® W¹—UD³« l Wuu*« “uOH« WŽuL− w w(« ·dD« v«
≤ XÐUŁ® ©‰UF²ýô« ÕU²H0©Xu ±
*
±
Ëe dOžÒ“UN'« «c¼ l œ
‰UF²ýô« ÕU²H
iOÐôUÐ jD ‚—“« pKÝ
dLŠ√
*≤
dH√
œuÝ√
dO³« ±µ “uO
wHK)« i¹—Q²« ·dÞ
wz«uN« ·dÞ
*∫≤V−¹ ¨VOd²« q³ “UN'« «c¼ qOGAð h× q³
WUD« qOuð sJ1 ô p– ·öÐ ¨pK« «c¼ qOuð
ÆWOzUÐdNJ«
œuÝôUÐ jD iOЫ pKÝ iOÐ√
©WOUô«® ÈdO« WŽUL«
œuÝôUÐ jD ÍœU— pKÝ
ÍœU—
œuÝôUÐ jD dCš« pKÝ
©WOUô«® vMLO« WŽUL«
dCš«
œuÝôUÐ jD w½«uł—« pKÝ
©WOHK)«® ÈdO« WŽUL«
w½«uł—«
©WOHK)«® vMLO« WŽUL«
“uOH« WŽuL− qš«œ wU{ô« ·dD« v«
“uOH« WŽuL−
jD<« dE½«® j)« Ãdš
©
q¹œuLK jIKD-G455 ∫CDb³ f³I Ò wł—U)« X½U½u³LJ« “UNł Ë« W−b*« W½«uDÝô« ‰ jD<« dE½«®©
wÐdŽwÐdŽ
wÐdŽwÐdŽ
wÐdŽ
Rear ground terminal
!"#$%
®ÿ¥‡™◊ËÕ¡µËÕ“¬¥‘π¥È“πÀ≈—ß