EasyManua.ls Logo

JVC KD-RD98BTS - Wiring Connections (Specific Models); Wiring Diagram for KD-R985 BTS;KD-R885 BTS;KD-RD98 BTS

JVC KD-RD98BTS
46 pages
Print Icon
To Next Page IconTo Next Page
To Next Page IconTo Next Page
To Previous Page IconTo Previous Page
To Previous Page IconTo Previous Page
Loading...
ENGLISH
35
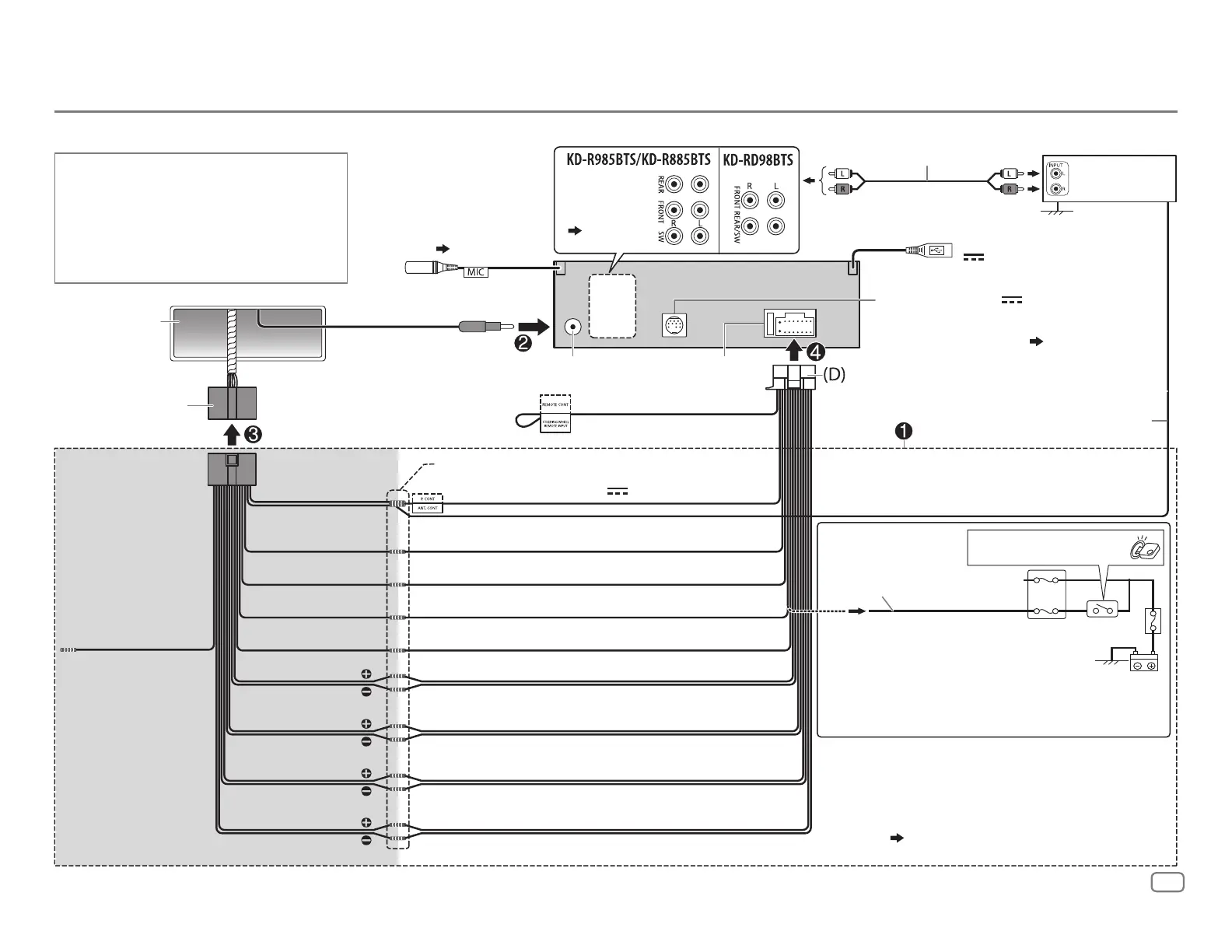
KD-R985BTS
: USB cable (DC 5 V
1.5 A) (approx. 1.2 m/4 feet)
Car fuse block
Ignition switch
Light blue/yellow
Blue/white:
To amplifier
Blue:
To power antenna
Make this connection if your vehicle factory wiring
harness does not have “12V ignition switch” wire.
Separate red wire
Wiring connection (for
KD-R985BTS/KD-R885BTS/KD-RD98BTS
)
Signal cord (not supplied)
Remote wire (not supplied)
To the steering wheel
remote control adapter
Fuse (10A)Antenna terminal
JVC Amplifier
*
1
Factory wiring
harness (vehicle)
Black: Ground
Yellow: Battery 12V
White: Front speaker/3-way crossover: Mid range speaker (left)
White/black
Gray: Front speaker/3-way crossover: Mid range speaker (right)
Gray/black
Purple: Rear speaker/3-way crossover: Tweeter (right)
Purple/black
Join the same color wires together.
Red: Ignition 12V
Orange/white: Illumination
Blue/white: Remote (12 V
350mA)
MIC (Microphone input
terminal)
( 14)
Expansion port (12 V 500mA)
To the optional SiriusXM Vehicle Tuner
(commercially available)
( 11)
Output
terminals
(
34
)
Brown (not used)
Green: Rear speaker
*
2
/3-way crossover: Tweeter (left)
Green/black
*
2
*
1
Firmly connect the ground wire of the amplifier to the
car’s chassis to avoid damaging the unit.
*
2
You can also connect a subwoofer speaker directly using
this lead without an external subwoofer amplifier. For
setting,
24
.
Custom wiring harness
(separately purchased)
Vehicle
dashboard
Recommended connection
INSTALLATION/CONNECTION
IMPORTANT
We recommend installing the unit with a
commercially available custom wiring harness
specific for your car and leave this job to
professionals for your safety. Consult your car
audio dealer.
JS_JVC_KD_R985BTS_K_EN_6.indd 35 24/8/2016 2:37:35 PM

Related product manuals