EasyManua.ls Logo

JVC MX-GB6

JVC MX-GB6
85 pages
To Next Page IconTo Next Page
To Next Page IconTo Next Page
To Previous Page IconTo Previous Page
To Previous Page IconTo Previous Page
Loading...
1-14 (No.MB160)
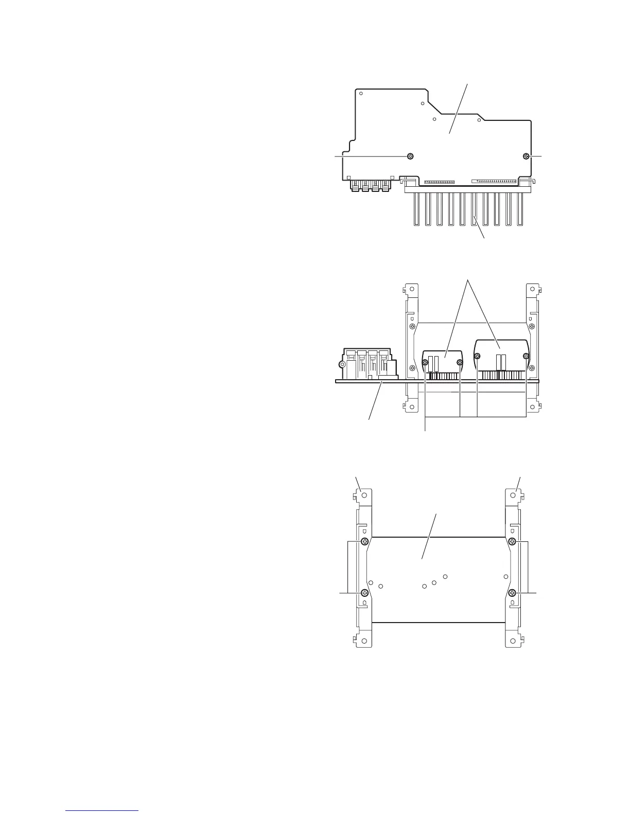
3.1.7 Removing the heat sink
(See Figs.21 to 23)
Prior to performing the following procedures, remove the top
cabinet, CD changer mechanism assembly and amplifier
board.
(1) From the reverse side of the amplifier board, remove the
two screws P attaching the heat sink. (See Fig.21.)
(2) From the forward side of the amplifier board, remove the
four screws Q attaching the power amplifier IC on the heat
sink. (See Fig.22.)
(3) From the bottom side of the heat sink, remove the four
screws R attaching the brackets on the heat sink. (See
Fig.23.)
Fig.21
Fig.22
Fig.23
Amplifier board
Heat sink
P
P
Q
Amplifier board
Power amplifier IC
R
R
Heat sink
BracketBracket

Other manuals for JVC MX-GB6

Related product manuals