EasyManua.ls Logo

JVC SR-HD1250US - Page 33

JVC SR-HD1250US
39 pages
Print Icon
To Next Page IconTo Next Page
To Next Page IconTo Next Page
To Previous Page IconTo Previous Page
To Previous Page IconTo Previous Page
Loading...
A
1
2
3
4
5
BCDEFG
(No.YD125<Rev.001>) 2-8 2-8 (No.YD125<Rev.001>)
3.5mm
3.5mm
3.5mm
3.5mm 3.5mm
3.5mm
D3.3V
D3.3V
DGND
DGND
DGND
DGND
OPEN
QAF0059-272
VA704
OPEN
NAF0016-301X
VA701
OPEN
QAF0059-272
VA703
OPEN
NAF0016-301X
VA702
OPEN
NRSA63F-104X
_1%
R715
OPEN
NRZ0095-206X
R716
OPEN
R718
4.7
R701
0
R702
OPEN
NRSA63F-3651X
_1%
R722
OPEN
NRSA63F-1071X
_1%R714
OPEN
R721
OPEN
NRSA63F-5360X
_1%
R713
OPEN
NRZ0095-206X
R717
OPEN
1%
NRS125F-73R2X
R719
OPEN
NRSA63F-2491X
_1%R720
OPEN
R723
OPEN
2SC3554/MLK/-X
Q705
OPEN
2SC5734K/QR/-X
Q701
OPEN
2SC3554/MLK/-X
Q703
OPEN
2SC5734K/QR/-X
Q702
OPEN
2SA1812/Q/-W
Q704
8
7
6
54
3
2
1
OPEN
LF701
NQR0568-005X
OPEN
NQR0006-001X
K702
OPEN
NQR0006-001X
K701
OPEN
NRSA02J-0R0X
K704
OPEN
NRSA02J-0R0X
K705
8
76
5
4321
OPEN
J702
QNZ0575-001
321
GP1FAV31TK0F
IC701
QE
1
DCT
2
RX
3
IB
4
C1B
5
C2B
6
VREG
7
RNG1
8
RNG2
9
VREG2
10
SC
11
QE2
12
QB
13
DCT3
14
IGND
15
DCT2
16
OPEN
SI3010-FS/F-X
IC702
2
3
1
4
OPEN
S1ZB60-X
D701
OPEN
PTZ18B-X
D702
2
14
3
OPEN
NCZ9003-330X
C707
OPEN
C710
22/6.3
C701
OPEN
NCZ9001-681X
C715
OPEN
NCZ1024-103X
C714
OPEN
C713
OPEN
C712
0.1
C702
OPEN
NCZ9001-681X
C716
OPEN
NDC31HJ-272X
C709
OPEN
C711
1394_TPA0+11
1394_TPA0-10
GND9
1394_TPB0+8
1394_TPB0-7
GND6
MODEM_C1A5
MODEM_C2A4
GND3
D3.3V2
SPDIF1
QGB1238J1-11
CN701
GND 8
GND 7
RING 3
TIP 4
OPEN
QNZ0841-001
J701
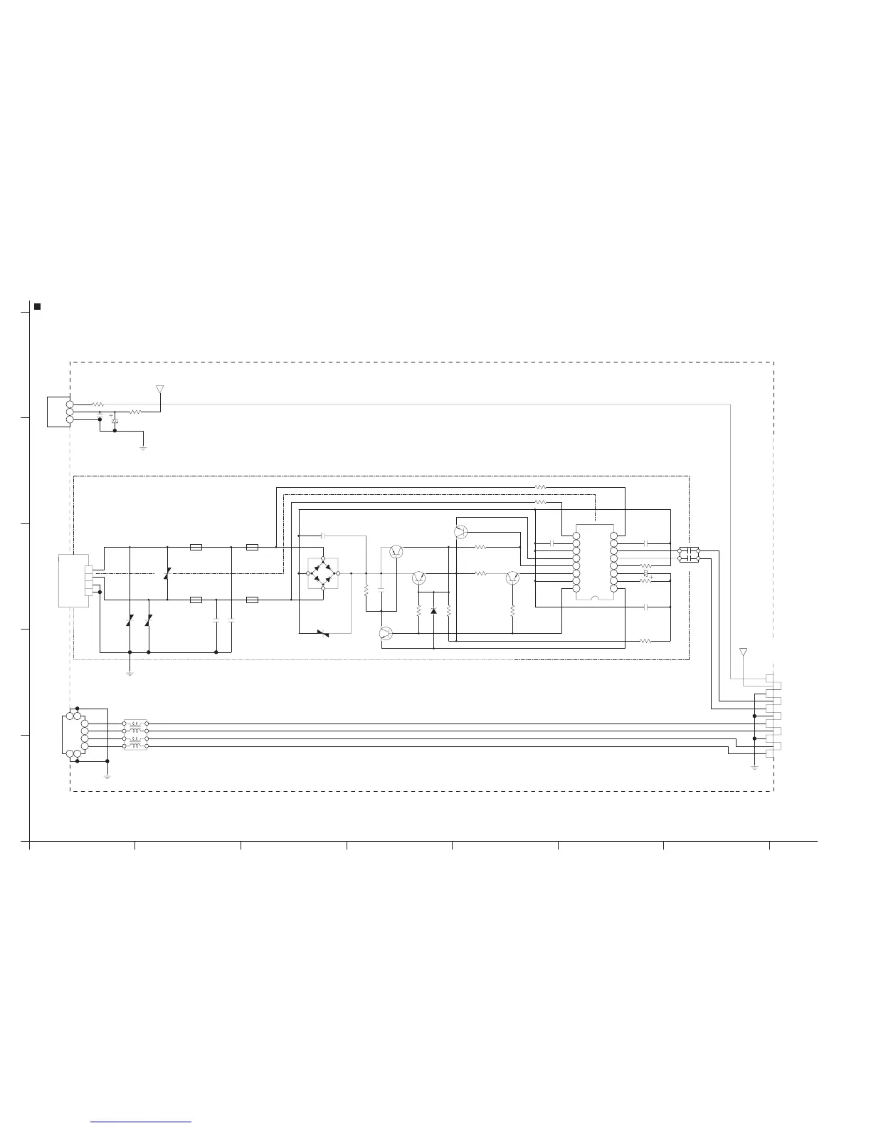
OPT DIGI SCHEMATIC DIAGRAM <08>
TO BE-DIGITAL
CN2901