EasyManua.ls Logo

KAESER ASK 27 - Safety Devices, Signs, and Emergencies

KAESER ASK 27
136 pages
Print Icon
To Next Page IconTo Next Page
To Next Page IconTo Next Page
To Previous Page IconTo Previous Page
To Previous Page IconTo Previous Page
Loading...
Activity Danger area Authorised personnel
Transport Within a 3 m radius of the machine. Installation personnel for transport
preparation.
No personnel during transport.
Beneath the lifted machine. No personnel!
Installation Within the machine.
Within 1 m radius of the machine and its sup‐
ply cables.
Installation personnel
Operation Within a 1 m radius of the machine. Operating personnel
Maintenance Within the machine.
Within a 1 m radius of the machine.
Maintenance personnel
Tab. 36 Danger Areas
3.6 Safety devices
Various safety devices ensure safe working with the machine.
Do not change, bypass or disable safety devices.
Regularly check safety devices for their correct function.
Do not remove or obliterate labels and notices.
Ensure that labels and notices are clearly legible.
Further information More information on safety devices is contained in chapter 4, section 4.8.
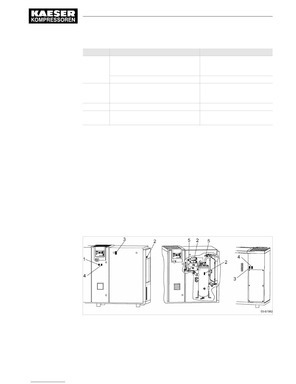
3.7 Safety signs
The diagram shows the positions of safety signs on the machine. The table lists the various safety
signs used and their meanings.
Fig. 2 Location of safety signs
3 Safety and Responsibility
3.6 Safety devices
9_5717 20 E
Service Manual Screw Compressor
ASK T SIGMA CONTROL BASIC
23

Table of Contents

Related product manuals