EasyManua.ls Logo

Kärcher HD 1050 - Unit Function; Operation with Mains Water Feed; Operation with Suction Feed; Operation with Detergent

Kärcher HD 1050
27 pages
Print Icon
To Next Page IconTo Next Page
To Next Page IconTo Next Page
To Previous Page IconTo Previous Page
To Previous Page IconTo Previous Page
Loading...
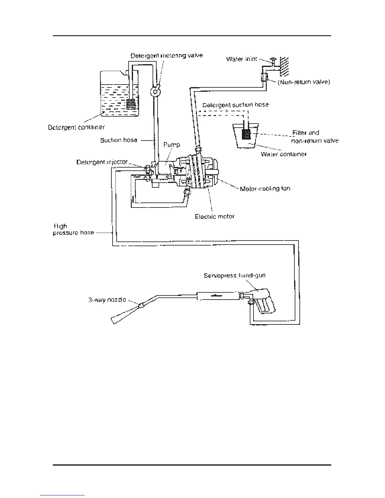
Unit function HD 1050
4
1. Operation with mains water feed
The water from the mains connection flows
through the non-return valve to the pump and,
when the motor is switched on, the pump delivers
water under high pressure through the high
pressure hose and hand gun to the 3-way nozzle.
2. Operation with suction feed
When the motor ist switched on, the pump
draws water from the water tank or container
through the filter and non-return valve and
delivers it at high pressure through the high-
pressure hose and hand gun to the 3-way
nozzle.
3. Operation with detergent
When the 3-way nozzle is switched to fan jet,
detergent is drawn by the injector through the
detergent suction hose and is mixed with the
water delivered by the pump. On the HD 1050
cleaner, the amount of detergent fed can be
steplessly adjusted by means of metering valve.
A. Unit function

Related product manuals