EasyManua.ls Logo

Keltech C2N363/600D - Plumbing Installation

Keltech C2N363/600D
17 pages
Print Icon
To Next Page IconTo Next Page
To Next Page IconTo Next Page
To Previous Page IconTo Previous Page
To Previous Page IconTo Previous Page
Loading...
5
Installation C2N Series Tankless Heater
Bradley215-1821 Rev. B; ECN 16-17-005 5/3/2016
Plumbing Installation
2
C
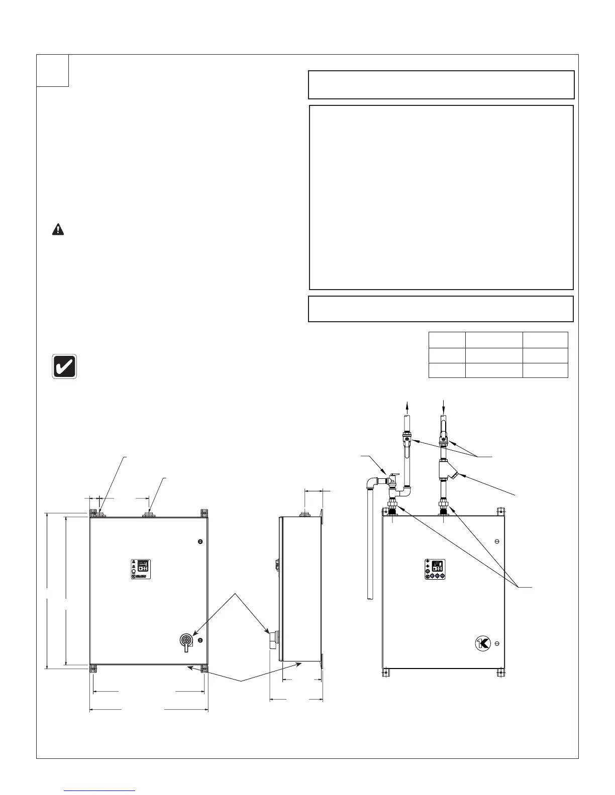
Use 3/4" hard copper tubing or pipe as needed.
A
Install shutoff valve above (upstream of) the heater.
inlet
NOTICE! Failure to install proper filtration may
result in a flow switch malfunction.
NOTICE! To avoid water damage, install a drain
pipe from the pressure relief valve to
an unrestricted drain.
If end use fixture is not at the highest point in
the plumbing loop, then an automatic air vent
valve must be added at the highest point in the
system or at any drop to eliminate trapped air.
Components Needed:
(2) Union 3/4"
Shutoff Valve
Pressure and Temperature Relief Valve (150 psi/10 bar)
Y-Strainer (100 mesh) or Inline Filter (150 microns)
(2) Gate or Ball Type Valves
Drain pipe
Water hammer arrestor (recommended)
Elbows, nipples and fittings as needed
Dim. "A" Dim. "B"
36kW
31-1/2" (800) 30" (762)
50kW
37-1/2" (953) 36" (914)
Dimensions, Plumbing and
Electrical Configurations
2"
(51)
3/4" Female
NPT Inlet
3/4"
Female
NPT Outlet
10"
(254)
A
22-1/2" (572)
24" (610)
B
3-3/8"
(86)
8"
(203)
8-3/4"
(222)
Optional Fused
Disconnect
Suggested
Location for
Power Entrance
- Provided By
Installer
LOAD L
LOAD R
READY
TESTFAULT RESET
GROUND FAULT
TEMPERATURE CONTROLLER
R
1
2
3
4
5
Outlet
To Drain
Inlet
P&T Relief
Valve
Threaded
Unions
Y-Strainer
Recommended
Suggested Installation Configuration
Components provided by installer unless
otherwise specified. Reference the product
options sections or contact your local
Bradley Representative for product options.
Ball Valves
B
Install one union on the water inlet side of the
heater. Install one 100 Mesh (150 micron) Y-strainer
above (upstream of) union.
Install one union on the water outlet side of the heater.
Install one P & T Relief Valve above (downstream of)
union.
Install the pressure relief valve (150 psi/10 bar) and
outlet plumbing of heater per code requirements and
route relief valve discharge to drain. Make sure no
shutoff valve is between the water heater outlet and
the relief valve, as well as no shutoff valve between
the relief valve discharge and drain. Install hammer
arrestor. Ensure plumbing is secure and not subject
to vibrations.
CAUTION To avoid damage to the electronics
or internal wiring, do not perform any
brazing or sweat soldering inside the
enclosure.

Related product manuals