EasyManua.ls Logo

Keyscan CA250 Series - Jumper Settings; System Configuration - Jumper J16; Communication Baud Rate Selection; Communication Terminal Block Activation

Default Icon
200 pages
Print Icon
To Next Page IconTo Next Page
To Next Page IconTo Next Page
To Previous Page IconTo Previous Page
To Previous Page IconTo Previous Page
Loading...
Keyscan Technical Guide (PC109x - 04.12)
50
Terminate Auxiliary Outputs with Hardware/Alarms
Door and auxiliary inputs can be programmed to trip auxiliary output relays on an alarm event. This excludes
pre-alert relays. Auxiliary output relays can be connected to alarm panels, CCTV systems etc.
As an example, a forced entry detected by a door input could be programmed to trip an auxiliary output that
initiates a CCTV system to record the intrusion at the door.
Auxiliary output relays may also be used to control hardware with an associated time zone, such as scheduling
the locking/unlocking of a door, which does not have a reader, to a defined time zone.
Important
Do not assign a time zone to an auxiliary output if the output has previously been assigned to an alarm
event. The alarm has priority over the time zone.
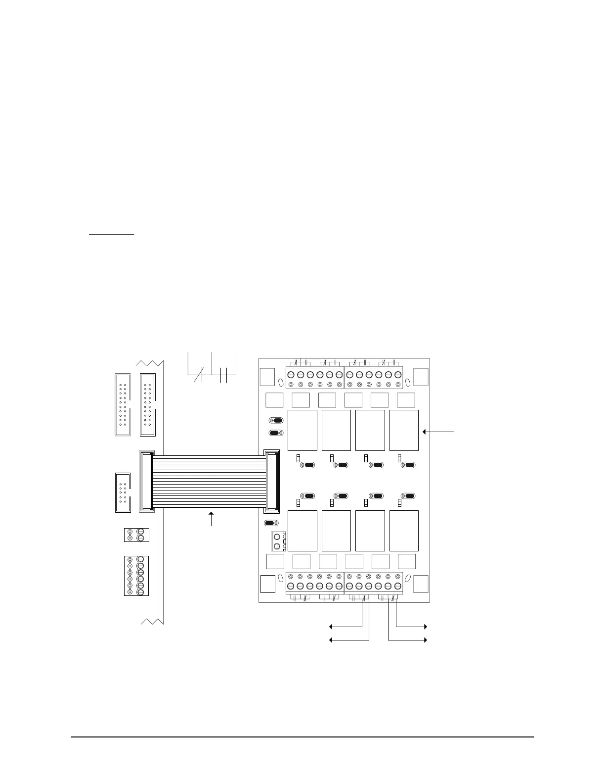
Figure 36 – Terminate Auxiliary Outputs CA250B
Normally
Closed
N.C.
Normally
Open
N.O.
alarm panel input
or
CCTV input
time zone
lock/unlock
CA250B
Control
Board
Cut View
OCB-8 ribbon cable
connects to CONTROL 1.
Door
Output
1
Door
Output
2
Aux
Output
1
Aux
Output
2
Aux
Output 4
or
HC 2
Pre-
Alert
Output
1
Pre-
Alert
Output
2
J1 J2 J3 J4
J5J6J7
J8
12V
ACU EXT
PWR
Normal
Reversed
J1
to
J8
K1
K2 K3 K4
K5K6K7K8
GND
red stripe
OCB-8
J9
Aux
Output 3
or
HC 1
When OCB-8 connected to CA250B
Relay 5 = Aux Output 3 or HC Output 1
Relay 6 = Aux Output 4 or HC Output 2
Do not use relays for both functions.
OCB-8
Relays
CONTROL 2
RS-232 (COM4)
CTS
CONTROL 4
DTR
DCD
RD
TD
GND
OCB-8 powered
through ribbon
cable with J9 set
to ACU PWR.
TAMPER TB3
SWITCH
+
-
KI-00139E-07-11

Table of Contents

Related product manuals