EasyManua.ls Logo

Keysight Technologies 34970A - 34908 A

Keysight Technologies 34970A
197 pages
Print Icon
To Next Page IconTo Next Page
To Next Page IconTo Next Page
To Previous Page IconTo Previous Page
To Previous Page IconTo Previous Page
Loading...
5 Theory of Operation
160 Keysight 34970A/34972A Service Guide
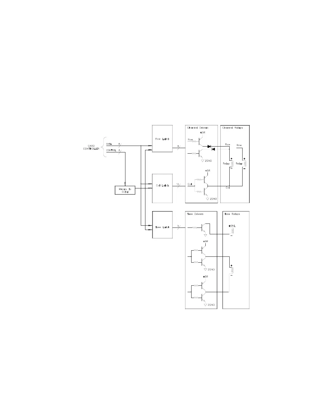
34908A
Components in this discussion are located on the A1 circuit assembly
(34908-66501).
The control circuitry has three grouping of latches, relay drivers and relays. The 40
voltage and resistance measurement channels are, for control purposes, arranged
into 8 rows by 10 columns. Tree switching controls bank selection and
connections to the analog bus.

Table of Contents

Related product manuals