EasyManua.ls Logo

Kipor KGE12E - ELECTRIC WIRING DIAGRAM; KGE12 E ELECTRICAL WIRING DIAGRAM

Kipor KGE12E
19 pages
Print Icon
To Next Page IconTo Next Page
To Next Page IconTo Next Page
To Previous Page IconTo Previous Page
To Previous Page IconTo Previous Page
Loading...
--
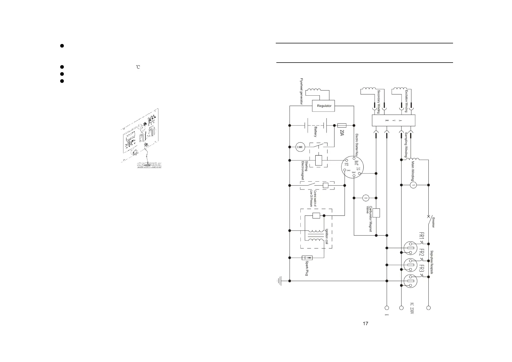
8. ELECTRIC WIRING DIAGRAM
-8-
Charge the battery in the well-ventilated place.
If charge the battery in the badly ventilated place, there is ignition or fire risk due
to inflammable gas.
If the battery is too hot(above 45 ), recharge after stopping for a while.
Stop charging quickly after the battery is fully charged.
If connect the battery anode and cathode against, the motor may be damaged.
4) Check the grounding protection
The generator frame and load frame should be installed grounding protection,
and make sure the grounding protection is ok.
5) Check fuel leakage
Inspect the wholly unit and check the fuel leakage. If fuel leak, check or contact
with your dealer for service.
6) Check the nuts and screws for looseness
Check the nuts and screws for looseness, if loose, tighten them. Specially check
the air filter, muffle and charging alternator.
Pay attention to the connection of the electric wire.
7) Clean the dirty and dusty in the unit
Check the inner of unit for dusty and dirty and clean it.
Check the muffle and the places near the engine for sundries and combustibles
<http://www.iciba.com/combustibles/> and clean them.
Check the intake and outtake for clog and clean it.
8) Load power connection
a) Make sure the generator is matched with load capacity, in order to connect the
power properly.
b) Connect output cable as per regulated wire diameter. c) The output cable as
short as better, the overlong cable will cause the voltage drop. So generator
should be closed to the loading center while installing.
1. KGE12E ELECTRICAL WIRING DIAGRAM

Related product manuals