EasyManua.ls Logo

KitchenAid KDRU707VSS01 - Page 52

KitchenAid KDRU707VSS01
56 pages
Print Icon
To Next Page IconTo Next Page
To Next Page IconTo Next Page
To Previous Page IconTo Previous Page
To Previous Page IconTo Previous Page
Loading...
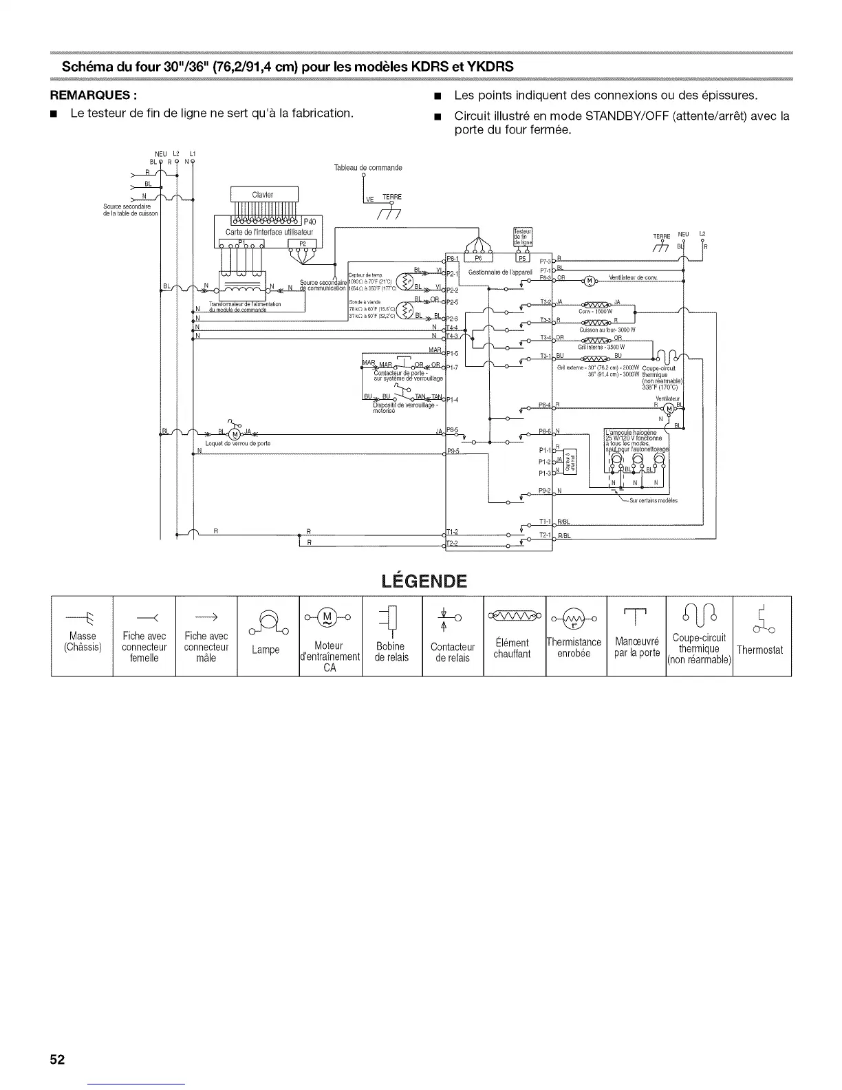
Schema du four 30"/36" (76,2/91,4 cm) pour les modules KDRS et YKDRS
REMARQUES : Les points indiquent des connexions ou des epissures.
Le testeur de fin de ligne ne sert qu'& la fabrication. Circuit illustre en mode STANDBY/OFF (attente/arr_t) avec la
porte du four fermee.
NEU L2 L1
BL>R) N
>_L_BL,
Source secondaire
dela taNe decuisson
BL_Lf_Z
Clavier
Carte de Hnterfaceutilisateur
Tableau de commande
N
N
N
N
Contacteur de porte -
sur systeme de verrouiEEage
mo_riseDiSositif de verrouillage -
ppareH
TERRE NEU L2
Venfllateur de cony.
Sulcertains modefes
Masse
(Ch_.ssis)
Ficheavec
conneoteur
femelle
LEGENDE
---->
Ficheavec
connecteur
m&le
Lampe
Moteur
d'entrafnement
CA
Bobine
de relais
Contacteur
de relais
Element
chauffant
Thermistance
enrobee
Manceuvre
parla porte
oL
Thermostat
52

Related product manuals