EasyManua.ls Logo

Klarstein alchemist - Page 16

Klarstein alchemist
Print Icon
To Next Page IconTo Next Page
To Next Page IconTo Next Page
To Previous Page IconTo Previous Page
To Previous Page IconTo Previous Page
Loading...
16
DE
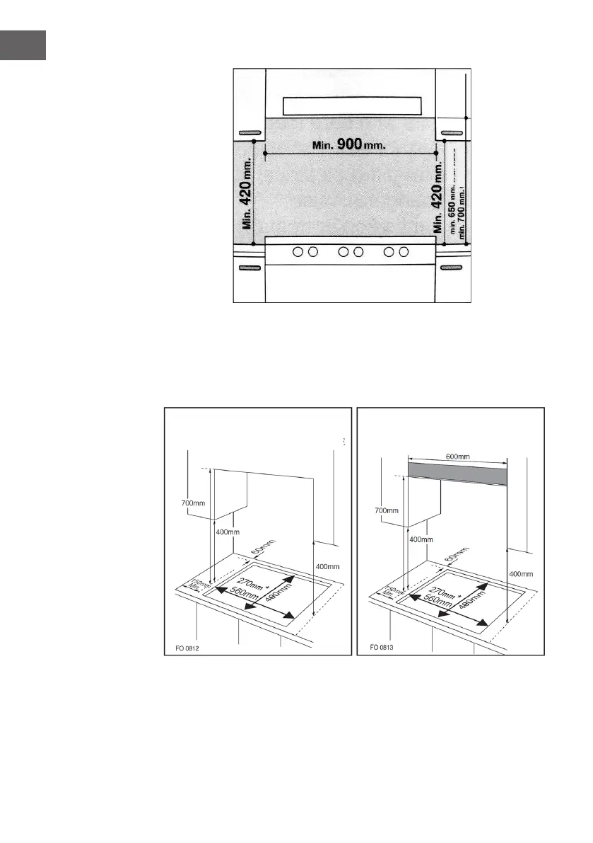
4. Der Herd sollte direkt unter einem Schrank installiert werden, wobei dieser
mindestens 700 mm von der Kochplatte entfernt sein sollte, wie in Abb. C
dargestellt.
5. Für die Platzierung des Kochfeldes an der Arbeitsplatte sind Befestigungsbeschläge
(Haken, Schrauben) vorgesehen, die 20 bis 40 mm dick sind (siehe Abb. 6).
DunstabzugshaubeDunstabzugshaube
mit Haubemit Haube
mit Haubemit Haube
Benötigte Abstände bei der Montage
ohne Dunstabzugshaube
Benötigte Abstände bei der Montage
mit Dunstabzugshaube
* Einbaumaße für das Modell mit 2 Zonen.

Related product manuals