EasyManua.ls Logo

KOCOM KHV-446S - Installation Warnings and Precautions; General Installation Precautions

KOCOM KHV-446S
21 pages
Print Icon
To Next Page IconTo Next Page
To Next Page IconTo Next Page
To Previous Page IconTo Previous Page
To Previous Page IconTo Previous Page
Loading...
16_www.kocom.com Security Home Auto System_17
Self-alarming Test
Warnings in Installation
Purpose of Test
This function offers self-testing by operating system in order to minimize damages due to system breakdown in emergencies(sensor test
is unavailable. Sensor test should be carried out after sensor operates. Before sensor operation test, please contact administration office
or KOCOM A/S headquarter).
Test Methods (general functions)
After pressing the "Test" button,
Pressing the emergency (fire, gas leakage and
s 1) button, concerned alarming sound rings
and concerned lamp flickers (For fire and gas
leakage, concerned lamps are turned on).
Fire and gas leakage function is unavailable in
KHV-446T and 456T.
Pressing the "Reset" button, alarming lamp is turned off and
alarming sound stops.
Pressing the "Stop" button, alarming lamp and alarming stop
LED flicker, while alarming sound does not ring (For fire and
gas leakage, lamp and LED are turned on).
When installing monitor and front door camera, avoid where direct light or back light come into.
Install the front door camera where rainwater cannot reach. Standard height of monitor is 1,450~1,500mm from the floor to
the center of CRT.
Install the front door camera after cement of installed wall becomes fully dry and solid.
When installing the product in the wintertime whose temperature is below 5, connect the equipment after 2
hours from installation. Temperature gap between indoor and outdoor makes dews inside of the monitor and
camera, which may cause mechanical troubles of equipment.
When installing the monitor and front door camera, avoid where equipment can be exposed to direct heat or harmful gas.
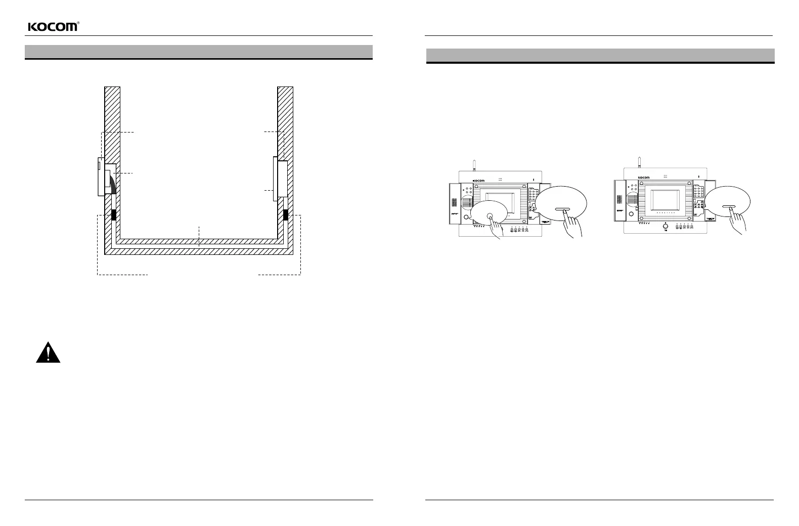
Closing up pipe as shown in the figure removes the temperature difference
between indoor and outdoor as well as prevents the humidity and frost on the
window of front door camera.
Close up PVC pipe with insulation
materials to prevent air from flowing.
Wall (Front Door)
Wall (Indoor)
Piping Box
Piping Box
Piping
Camera (Outdoor, Front door)
Monitor
(Indoor)
fire, Gas Leakage
and
S 1 & S 2
reset
Emergency

Related product manuals