EasyManua.ls Logo

Kohler 12EFKOZD - 2.14.3 System Fault Warning Lamp with Digital Displays

Kohler 12EFKOZD
84 pages
To Next Page IconTo Next Page
To Next Page IconTo Next Page
To Previous Page IconTo Previous Page
To Previous Page IconTo Previous Page
Loading...
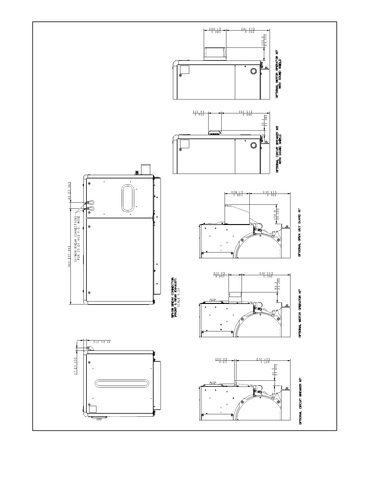
TP-7045 3/18c 49Section 7 Installation Drawings
ADV-8859B-A
NOTE: Dimensions are shown in mm [in.].
Figure 7-15 Accessory Drawing—Siphon Break Connection, 32/40EKOZD and 28/35EFKOZD (Sheet 2 of 2)

Table of Contents

Other manuals for Kohler 12EFKOZD

Related product manuals