EasyManua.ls Logo

Kohler 14EKOZD - Page 49

Kohler 14EKOZD
84 pages
Print Icon
To Next Page IconTo Next Page
To Next Page IconTo Next Page
To Previous Page IconTo Previous Page
To Previous Page IconTo Previous Page
Loading...
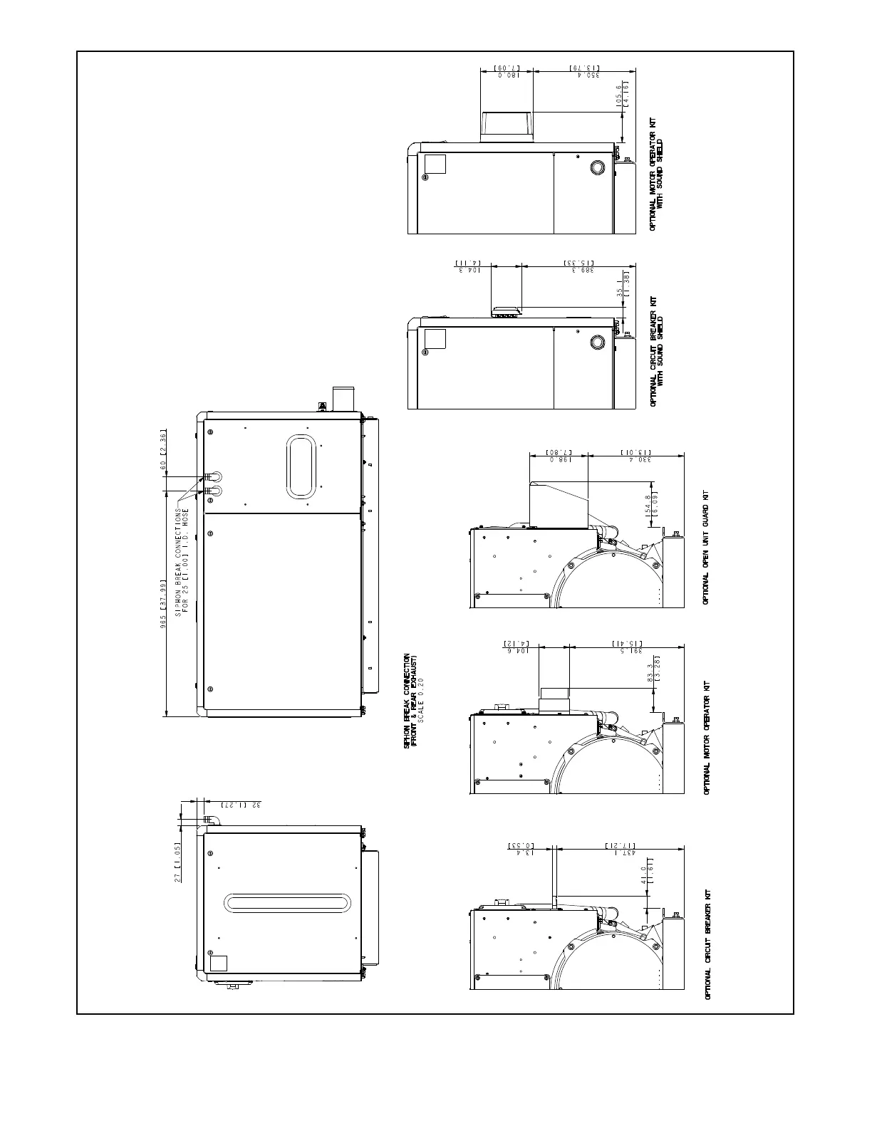
TP-7045 3/18c 49Section 7 Installation Drawings
ADV-8859B-A
NOTE: Dimensions are shown in mm [in.].
Figure 7-15 Accessory Drawing—Siphon Break Connection, 32/40EKOZD and 28/35EFKOZD (Sheet 2 of 2)

Table of Contents

Other manuals for Kohler 14EKOZD

Related product manuals