EasyManua.ls Logo

Kohler 16EFOZ - Page 76

Kohler 16EFOZ
92 pages
Print Icon
To Next Page IconTo Next Page
To Next Page IconTo Next Page
To Previous Page IconTo Previous Page
To Previous Page IconTo Previous Page
Loading...
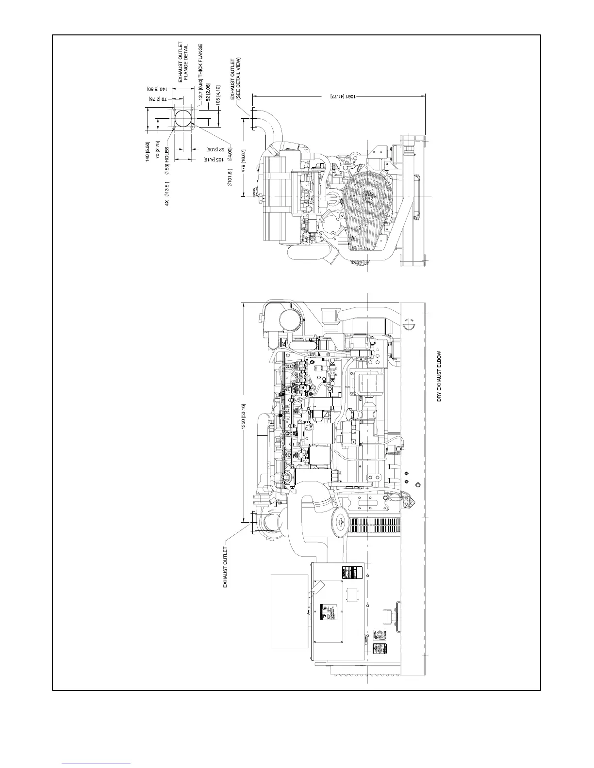
TP-6069 6/0366 Section 7 Installation Drawings
ADV-6594C-D
NOTE: Dimensions in [ ] are inch equivalents.
Figure 7-38 Dimension Drawing, 100/125EFOZ and 125/150EOZ with Dry Exhaust Elbow

Other manuals for Kohler 16EFOZ

Related product manuals