EasyManua.ls Logo

Kohler 20-300 kW - Shunt-Trip Line Circuit Breaker; Single-Relay Dry Contact Kit (DEC 3+)

Kohler 20-300 kW
76 pages
To Next Page IconTo Next Page
To Next Page IconTo Next Page
To Previous Page IconTo Previous Page
To Previous Page IconTo Previous Page
Loading...
TP-6161 1/12 63Section 6 Accessories
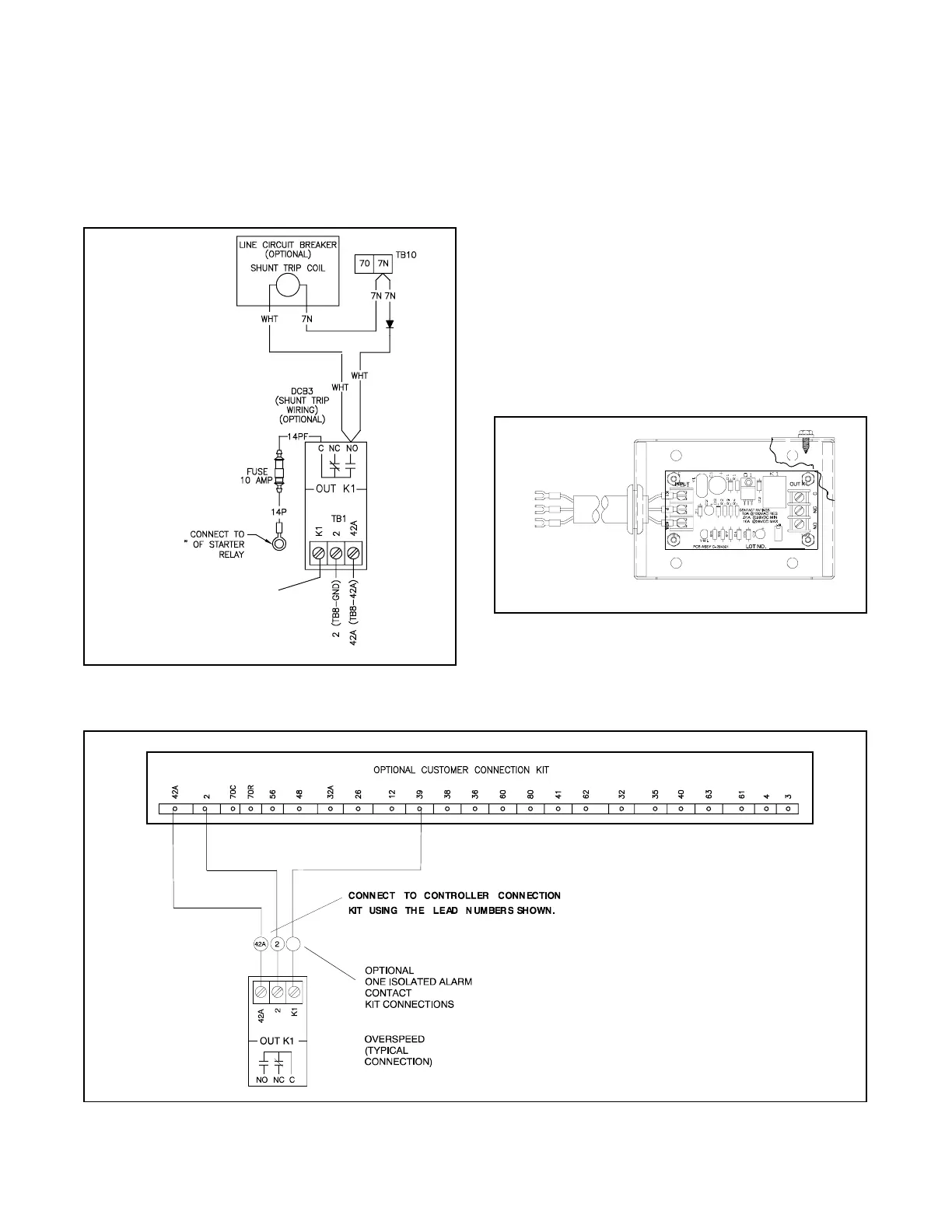
6.1.16 Shunt-Trip Line Circuit Breaker
A shunt-trip line circuit breaker provides a 12- or 24-DC
volt solenoid within the line circuit breaker case that can
energize the trip mechanism. This feature allows the
circuit breaker to be tripped by a customer-selected fault
such as an overspeed, auxiliary, or defined common
fault. Connection requires a shunt-trip wiring kit and a
dry contact kit. See Figure 6-28.
GM16088A-H
Typical Connection:
Auxiliary (26),
Defined Common Fault Line 1 (32),
Defined Common Fault Line 2 (32A), or
Overspeed (39)
Figure 6-28 Shunt-Trip Line Circuit Breaker and
Shunt-Trip Wiring Kit Connections
6.1.17 Single-Relay Dry Contact Kit
(DEC 3+)
The single-relay dry contact kit uses one set of contacts
to trigger customer-provided warning devices if a fault
condition occurs. Connect any controller fault output
connection from the TB1 terminal strip to the single-
relay kit. Use the single-relay dry contact kit as a
common fault relay for signaling any of the following
common fault conditions:
D Emergency Stop (48)
D Auxiliary (26)
D Overspeed (39)
D Low Oil Pressure (38)
D High Engine Temperature (36)
Connect a maximum of three dry contact kits to a single
controller output. See Figure 6-29 and Figure 6-30.
A-273945
Figure 6-29 Single-Relay Dry Contact Kit, Typical
GM16088A-A/328912A-H
CONTROLLER CONNECTION KIT MOUNTED IN JUNCTION BOX
Figure 6-30 Single-Relay Dry Contact Kit Connections

Table of Contents

Related product manuals