EasyManua.ls Logo

Kohler 4.5EFOD - Page 48

Kohler 4.5EFOD
60 pages
Print Icon
To Next Page IconTo Next Page
To Next Page IconTo Next Page
To Previous Page IconTo Previous Page
To Previous Page IconTo Previous Page
Loading...
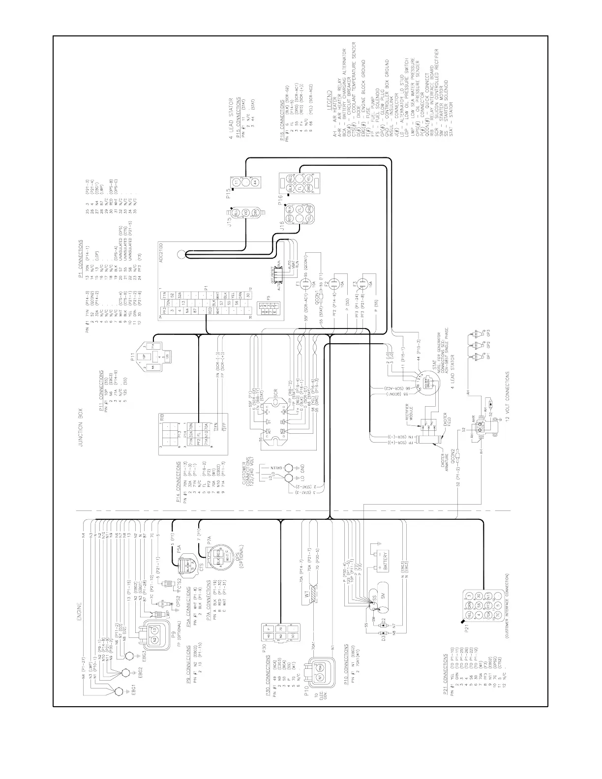
TP-6252 2/0848 Section 5 Wiring Diagrams
GM42202-E
Figure 5-2 Wiring Diagram for Model 6EOD/4.5EFOD

Table of Contents

Related product manuals