EasyManua.ls Logo

Kohler KG100

Kohler KG100
176 pages
To Next Page IconTo Next Page
To Next Page IconTo Next Page
To Previous Page IconTo Previous Page
To Previous Page IconTo Previous Page
Loading...
142 TP-6694 6/22
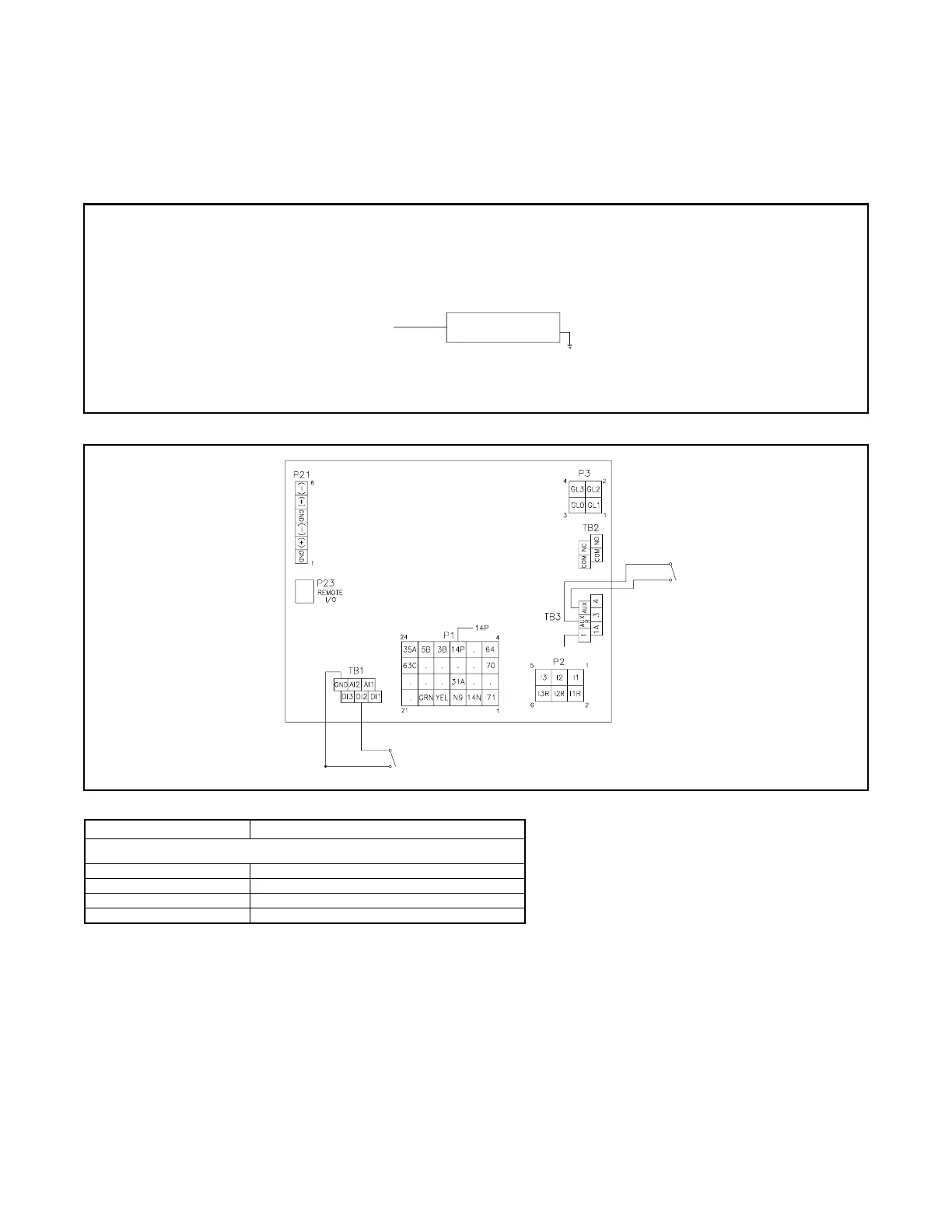
6.1.8 Low Fuel (Level/Pressure) Switch
Some gaseous-fueled models offer a low fuel pressure switch. The low fuel pressure switch connects to the same controller
terminal as the low fuel level switch on diesel-fueled models. See Figure 76, Figure 77, and Figure 78.
Note:
The main tank or the transfer/day tank includes the low fuel level switch. The fuel tank supplier typically provides the low fuel
level switch.
Figure 76 Low Fuel Switch (Level or Pressure)
Figure 77 Low Fuel Switch Connection to Controller Connection
Switch Rating
12 volts DC minimum, 0.5 amp minimum
Wiring Recommendation
Gauge
mm (ft.)
18-20
30.5 (100)
14
153 (500)
10
305 (1000)
Figure 78 Switch Rating & Wiring Recommendation
Battery Ground
Low Fuel Switch (Optional)
Located in Main Tank as
Provided by Fuel Tank Supplier
Connect to TB1 (for
warning) or TB3
(for shutdown)
APM402 / DEC 3000 Controller
Aux Shutdown Switch
(Customer Provided)
Aux Warning Switch
(Customer Provided)

Table of Contents

Other manuals for Kohler KG100

Related product manuals