EasyManua.ls Logo

Kohler KG100

Kohler KG100
176 pages
To Next Page IconTo Next Page
To Next Page IconTo Next Page
To Previous Page IconTo Previous Page
To Previous Page IconTo Previous Page
Loading...
144 TP-6694 6/22
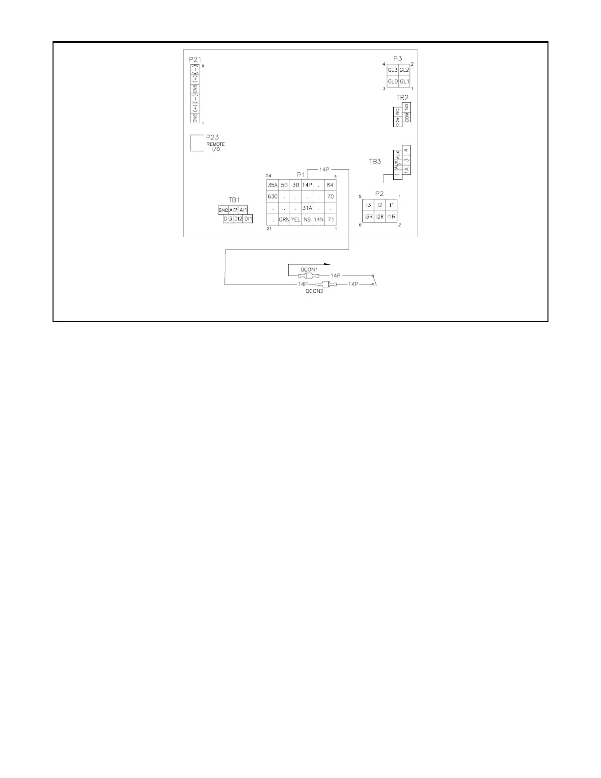
Figure 80 Prime Power Switch Connections
6.1.11 Remote Emergency Stop Kit
The emergency stop (E-stop) kit allows immediate shutdown of the generator set from a remote location. If the emergency stop
switch is activated, the EMERGENCY STOP lamp lights and the unit shuts down immediately, bypassing the engine cooldown
cycle. Before attempting to restart the generator set, reset the emergency stop switch and reset the generator set by pressing
and holding the OFF/RESET button for 3 seconds.
Two emergency stop kits are available. See Figure 81 and the following instructions.
Prime
Power
Switch
To Engine Harness
APM402 / DEC 3000 Controller
Toggle switch shown in the
prime power mode off
position (contacts open)

Table of Contents

Other manuals for Kohler KG100

Related product manuals