EasyManua.ls Logo

koppel KV36ODU-ARF21 - Page 36

Default Icon
79 pages
Print Icon
To Next Page IconTo Next Page
To Next Page IconTo Next Page
To Previous Page IconTo Previous Page
To Previous Page IconTo Previous Page
Loading...
Electric Characteristics
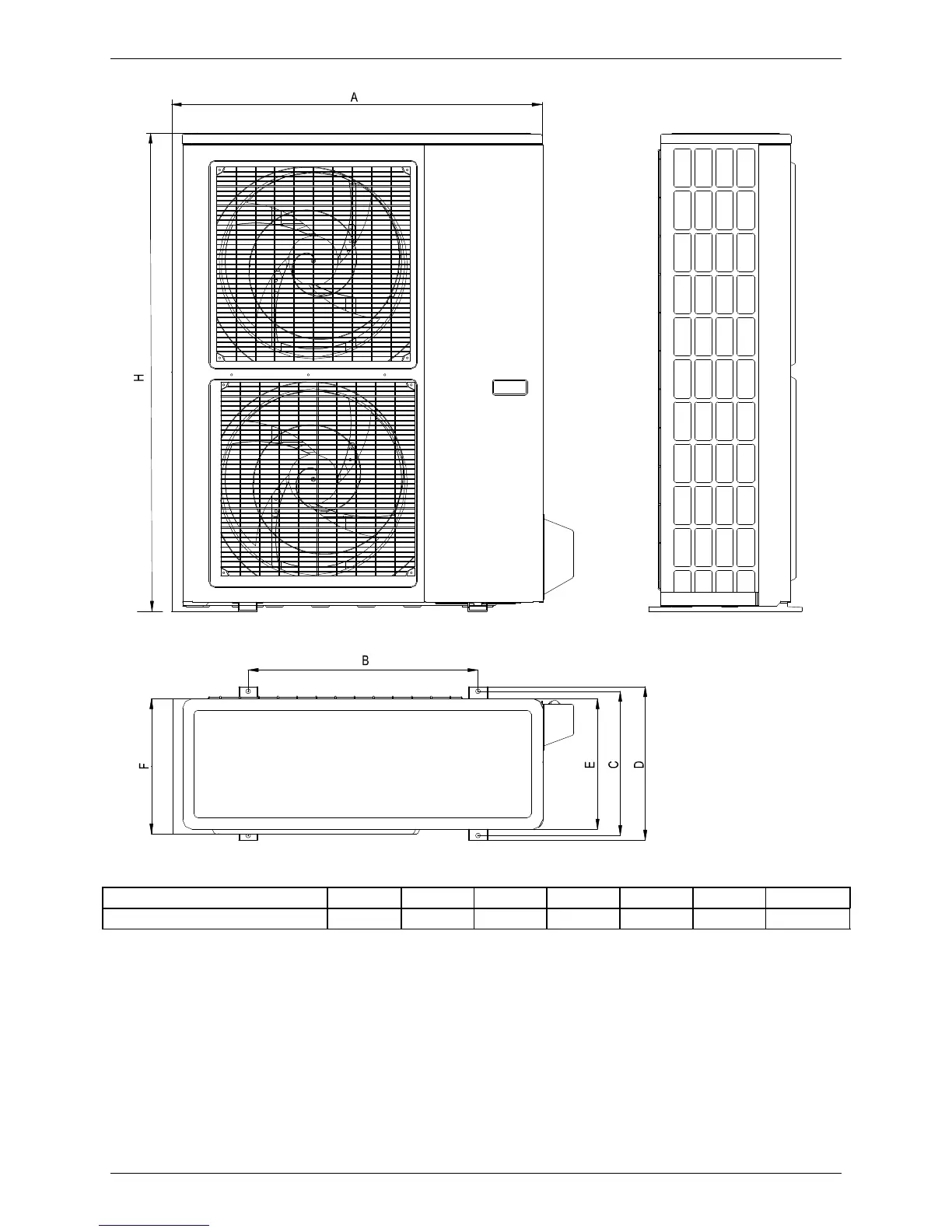
Unit: mm
MODEL A B C D E F H
KV48ODU-ARF21 940 600 376 400 340 360 1245
34 Outdoor Units

Related product manuals