EasyManua.ls Logo

KSB Multiboost - Important; Verification of Power Line with Respect to Motor Design

KSB Multiboost
16 pages
Print Icon
To Next Page IconTo Next Page
To Next Page IconTo Next Page
To Previous Page IconTo Previous Page
To Previous Page IconTo Previous Page
Loading...
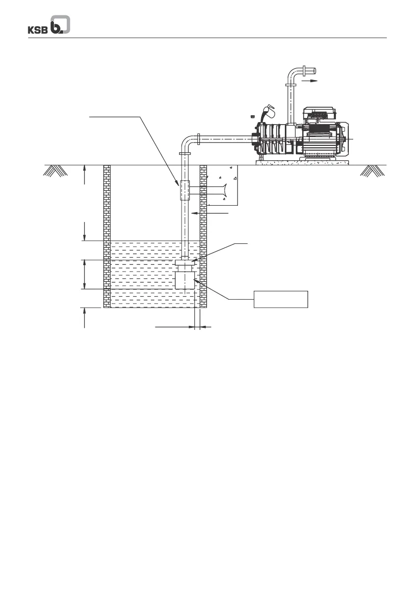
Suction Pipe Securing Clamp
to avoid load on the
Suction Flange
GL GL
Delivery
Maximum
(6 mtr. minus
Suction line
losses)
2.0 mtr
min.
0.5 mtr
min.
0.5 mtr
min.
Foot Valve
More thread length will damage the
foot valve
Well
Fig. 3
2.5 IMPORTANT
Never run the pump set with delivery valve closed or in dry condition to prevent
damage to the mechanical seal. The pump set must be protected from rain.
Ensure the motor is ON at-least once in day for a few minutes to maintain freeness.
2.6 Verification of power line with respect to motor design
Verify the voltage and frequency of main supply with the data given on the pump set
nameplate.
If it is not matching then consult with concerned electrical authority.
Ensure that the main power supply is stable.
5
MULTIBOOST

Related product manuals