EasyManua.ls Logo

Kwikee Level Best - On;Off Switch (Park Brake); Leg Extended Indicator

Kwikee Level Best
20 pages
Print Icon
To Next Page IconTo Next Page
To Next Page IconTo Next Page
To Previous Page IconTo Previous Page
To Previous Page IconTo Previous Page
Loading...
Level Best Service Guide Page 9
C On / Off Switch (park brake)
1. Green LED flashes when turning the control panel “ON”. This condition
indicates an improper, or an inadequate signal for the park brake interlock.
Check the connection at the signal source. This is normally located at or
near the parking brake assembly. The Level Best control is designed for a
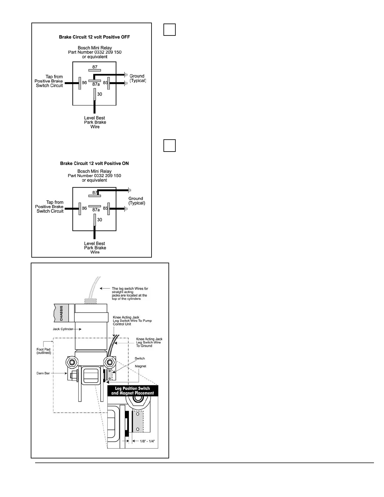
ground signal when the park brake is set. For a 12-volt signal a “mini relay”
is required to transform the signal for the control panel (Figure 2c.)
2. Check for the type of signal, Ground, 12-volt On, or 12-volt Off.
For a 12-volt On park brake signal see Figure 2c.
For a 12-volt Off park brake signal see Figure 2c.
D Leg Extended Indicator
1. With the ignition on, a green LED at the All / Up button indicates that all
leveling legs are in the fully retracted position. A flashing red LED indicates
that one or more of the leveling legs are not in the fully retracted position.
2. Flashing red LED. Visually check to verify leveling leg positions. If legs
are fully retracted, check the leg position wiring and switches (Figure 2d.)
3. Retest panel, if the LED continues to flash red, check leg position switch
function. Separate the wiring connector at the switch. Using an ohm meter
check the wires leading to each of the leg switches. These wires should
show continuity when the legs are fully retracted. If the wires do not show
continuity replace the defective leg switch (Figure 2d.)
Figure 2c
Figure 2d: Rear view of retracted jack as seen
through foot pad

Related product manuals