EasyManua.ls Logo

Lang GCCO-T - Page 60

Default Icon
73 pages
Print Icon
To Next Page IconTo Next Page
To Next Page IconTo Next Page
To Previous Page IconTo Previous Page
To Previous Page IconTo Previous Page
Loading...
60
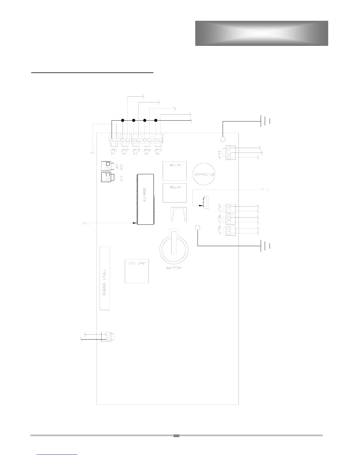
TECHNICAL DATA CONT’D
GCCO-PP / -PT TEST POINT LAYOUT
POWER
YELLOW
YELLOW
YELLOW
YELLOW
YELLOW
YELLOW
GREEN
GREEN
GREEN
GREEN
GREEN
POWER
ORANGE
MOTOR HIGH
RED
MOTOR LOW
BLUE
STEAM
GREEN
ECCO / GCCO LIGHTS
GREEN
YELLOW
YELLOW / RED
YELLOW
BROWN
BROWN
PURPLE PLUS
POWER SWITCH
ECCO / GCCO
PURPLE PLUS
POWER SWITCH
DOOR SWITCH

Related product manuals