EasyManua.ls Logo

Lennox 80MGF3-75 - 80 MGF with SureLight Ignition Control

Lennox 80MGF3-75
46 pages
To Next Page IconTo Next Page
To Next Page IconTo Next Page
To Previous Page IconTo Previous Page
To Previous Page IconTo Previous Page
Loading...
Page 35
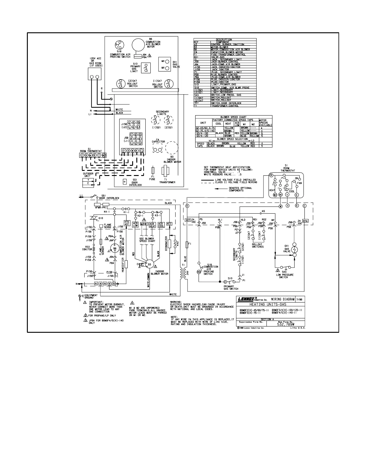
80MGF WITH SURELIGHT IGNITION CONTROL
1 − When there is a call for heat, W1 of the thermostat en-
ergizes W of the furnace control with 24VAC.
2 S10 primary limit switch and S47 rollout switch are
closed. Call for heat can continue.
3 SureLight control energizes combustion air blower
B6. Combustion air blower runs until S18 combustion
air prove switch closes (switch must close within 2−1/2
minutes or control goes into 5 minute Watchguard
Pressure Switch delay). Once S18 closes, a 15−sec-
ond pre−purge follows.
4 SureLight control energizes ignitor. A 20−second
warm−up period begins.
5 − Gas valve opens for a 4−second trial for ignition.
6 − Flame is sensed, gas valve remains open for the heat
call.
7 After 45−second delay, SureLight control energizes
indoor blower B3.
8 − When heat demand is satisfied, W1 of the indoor ther-
mostat de−energizes W of the SureLight control which
de−energizes the gas valve. Combustion air blower
B6 continues a 5−second post−purge period, and in-
door blower B3 completes a selected OFF time delay.

Related product manuals