EasyManua.ls Logo

Lennox CB30M-65

Lennox CB30M-65
44 pages
To Next Page IconTo Next Page
To Next Page IconTo Next Page
To Previous Page IconTo Previous Page
To Previous Page IconTo Previous Page
Loading...
Page 34
VIII–WIRING DIAGRAMS AND SEQUENCE OF OPERATIONS
7
1
2
3
4
6
5
8
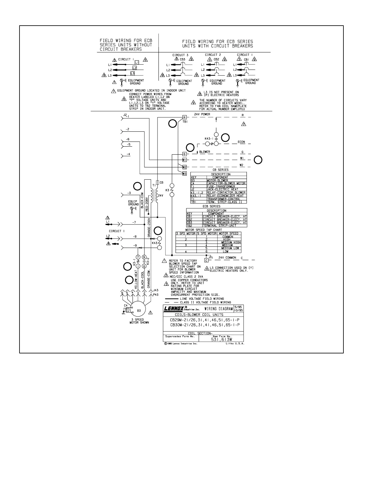
A–CB29M & CB30M – 208/230V SINGLE PHASE – SEQUENCE OF OPERATION
1- Line voltage is routed to transformer T1 and
blower motor B3.
2- T1 supplies 24VAC to terminal strip TB1, which
supplies 24VAC to the indoor thermostat and electric
heat, if used.
HEATING
3- When there is a call for heat, W1 of the thermostat
energizes the electric heat relay K32 (covered in the
electric heat section).
4- Blower motor B3 is energized on heating speed after
K32-1 closes (see electric heat).
5- Economizer relay K43 (if used) is energized after K32-1
closes (see electric heat section).
6- K43-1 closes energizing the economizer with 24VAC.
COOLING
7- When there is a call for cooling, G of the thermostat
energizes blower relay K3 and the economizer, if
used.
8- K3-2 closes energizing blower motor B3 on cooling
speed.

Table of Contents

Other manuals for Lennox CB30M-65

Related product manuals