EasyManua.ls Logo

Lennox EL180UH080NE48B - Integrated Control and Diagnostics

Lennox EL180UH080NE48B
29 pages
Print Icon
To Next Page IconTo Next Page
To Next Page IconTo Next Page
To Previous Page IconTo Previous Page
To Previous Page IconTo Previous Page
Loading...
Page 24
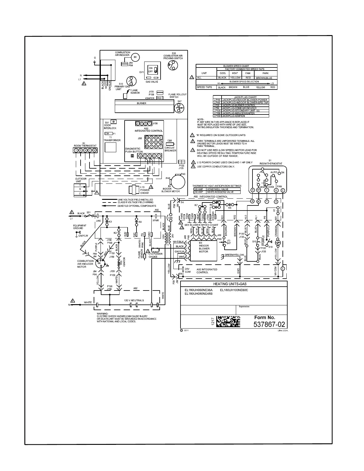
VII- Wiring and Sequence of Operation
1 - Line voltage is applied to L1 and N. the T1 low voltage transformer is energized, and line voltage is applied to B3 indoor blower.
2 - S47 rollout switch(es) must be closed in order for 24V from transformer to be output on integrated control ”R” to power thermo
stat.
3 - When there is a call for heat, W1 of the thermostat energizes W of the furnace control with 24VAC.
4 - A92 integrated control runs a self-check. S10 primary limit and S21 secondary limit contacts are found to be closed. Call for
heat can continue.
5 - A92 integrated control energizes B6 combustion air inducer. S18 combustion air pressure switch closes . Once S18 closes, a
15-second pre-purge follows.
6 - A92 integrated control energizes R33 ignitor. A 20-second warm-up period begins.
7 - GV1 gas valve opens for a 4-second trial for ignition
8 - Flame is sensed, gas valve remains open for the heat call.
9 - After 30-second delay (from flame sensed), A92 integrated control applies 24VAC to Heat speed of B3 indoor blower.
10 - When heat demand is satisfied, W1 of the indoor thermostat de-energizes W of A92ignition control which de-energizes GV1
gas valve.
B6 combustion air inducer continues a 5-second post-purge period, and B3 indoor blower completes a selected OFF time
delay.
EL180UHNE060/080/100 Schematic

Other manuals for Lennox EL180UH080NE48B

Related product manuals