EasyManua.ls Logo

Lennox FIRESTAR MERIT GC3 - Insert Dimensions; Installation Cautions

Lennox FIRESTAR MERIT GC3
28 pages
To Next Page IconTo Next Page
To Next Page IconTo Next Page
To Previous Page IconTo Previous Page
To Previous Page IconTo Previous Page
Loading...
7
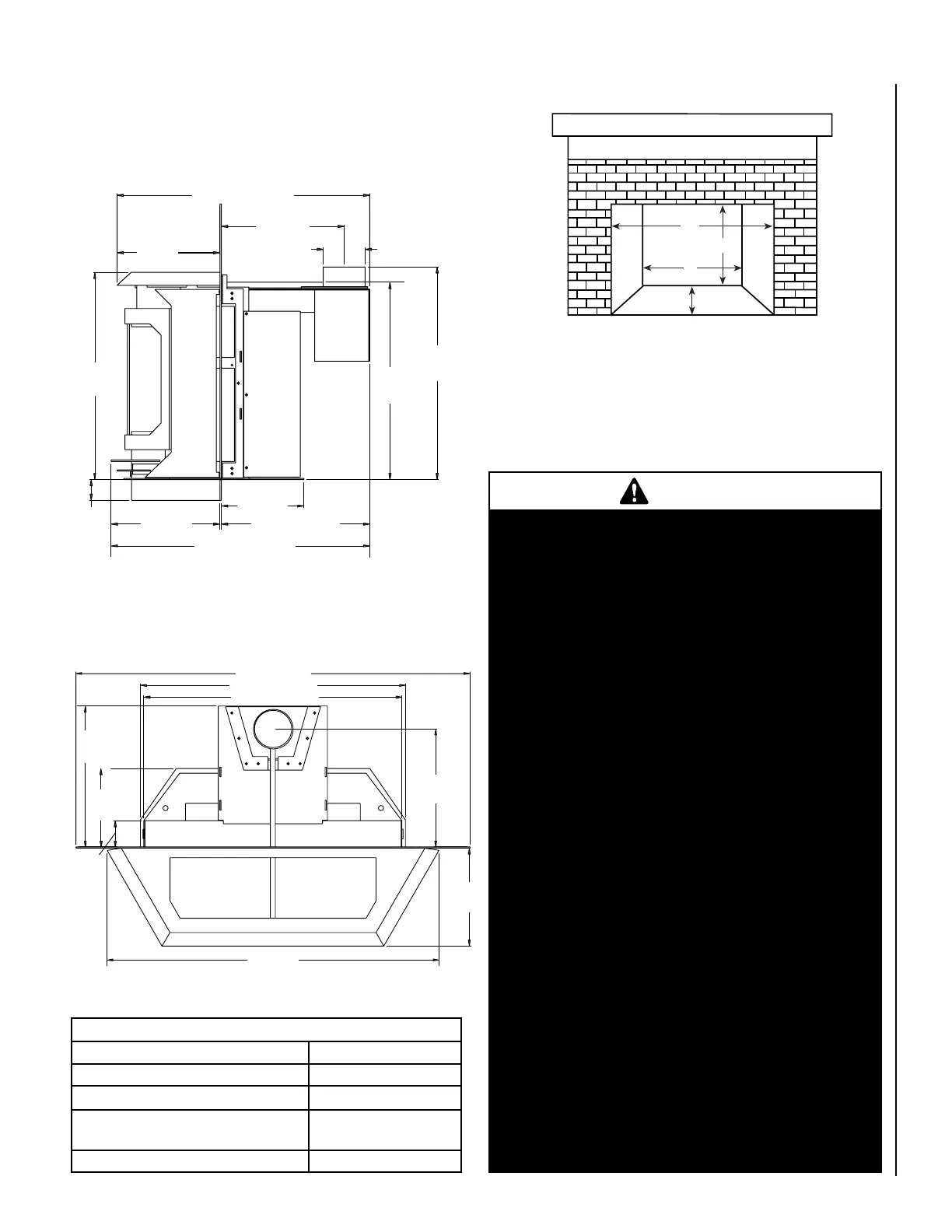
Figure 2
Minimum Fireplace Opening Required
A = 29-3/4” (756mm) Front Opening
B = 19” (483mm) Height
C = 19” (483mm) Rear Width
D = 15-1/4” (387mm) Fireplace Depth
Minimum Fireplace Cavity
Insert Dimensions
Width of insert behind Surround Panels 26-3/4” (680mm)
Rear height 18-7/8” (479mm)
Insert depth into fireplace 13-5/8” (346mm)
Flue center line from back of surround with
standard draft hood
11-3/8” (289mm)
Flue collar diameter (OD) 3-15/16” (100mm)
A
B
C
D
Insert Dimensions
See Figures 1, 2 and 3 showing insert dimensions and minimum
fireplace firebox dimensions to aid you in determining proper fit into
existing fireplace.
Figure 1
Figure 3
23-3/4” (603mm)
11-3/8”
(289mm)
9-7/8”
(251mm)
4” (102mm)
20-3/8
(518mm)
19
(583mm)
7-3/8
(187mm)
13-3/4(349mm)
24-3/4” (629mm)
10-1/2
(267mm)
20
(508mm)
*2
(51mm)
41” (1041mm)
26-3/4” (680mm)
26-1/4” (667mm)
13-3/4”
(349mm)
7-3/8”
(187mm)
2-1/8”
(54mm)
33-1/2”
(851mm)
9-7/8”
251mm)
11-3/8
(289mm)
* Equipped from the factory with a 2” filler. Contact your dealer for
additional information.
CAUTIONS
Trim panels or surrounds must not seal ventila-
tion openings in the existing fireplace that the
appliance is installed in.
The fireplace in which this gas insert is to be
installed must be thoroughly cleaned if it has
been used to burn wood or synthetic logs. Have
the chimney and all inside surfaces of the fire-
place brushed and vacuumed so that no soot,
embers, or loose combustion deposits can be
drawn into the heat circulation blower and blown
into the living area.
If any portion of the chimney system shows signs
of structural or mechanical weaknesses, such
as: cracks, leaky joints, corroded or warped
surfaces, the faulty portion must be repaired
or replaced prior to installing this appliance.
The factory built firebox must accept the insert
without modification other than removing bolted
or screwed together pieces such as baffles /
smoke shelf / deflectors, ash lips, glass door,
screen or door tracks, log grates, refractory or
masonry lining and damper assemblies. Any
fireplace component, which is removed, must be
retained so they can be reinstalled to restore the
fireplace to its original operating condition. The
removal of any part must not alter the integrity
of the outer shell of the pre-engineered fireplace
cabinet in any way. Any parts removed must be
replaceable. If any components are removed
from (or altered) from the existing fireplace,
a Warning Label (see Page 5) must be affixed
inside the fireplace firebox, so that it shall be
visible upon removal of the fireplace insert. Note:
RTV high temperature silicone is an approved
adhesive to affix the label.
NOTE: DIAGRAMS & ILLUSTRATIONS ARE NOT TO SCALE.

Related product manuals