EasyManua.ls Logo

Lennox G43UF - FEATURES; WARRANTY; APPROVALS; APPLICATIONS

Lennox G43UF
51 pages
Print Icon
To Next Page IconTo Next Page
To Next Page IconTo Next Page
To Previous Page IconTo Previous Page
To Previous Page IconTo Previous Page
Loading...
Page 2
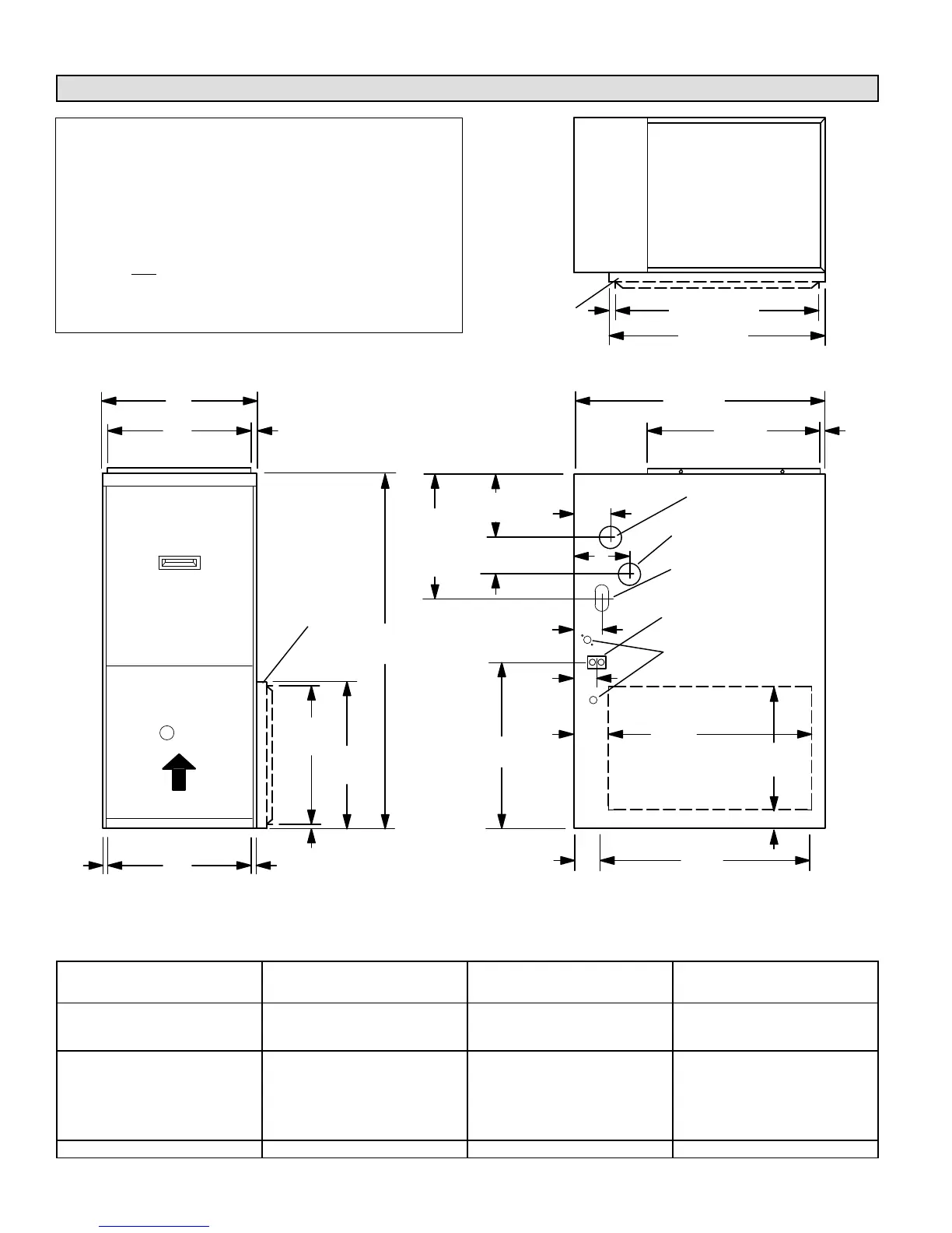
Unit Dimensions − inches (mm)
*Bottom Return
Air Opening
*Bottom Return
Air Opening
ELECTRICAL INLET
(Either Side)
SUPPLY AIR
OPENING
AIR FLOW
FRONT VIEW SIDE VIEW
TOP VIEW
A
B 9/16 (14)
C
3/4 (19)
3/4 (19)
28−1/2
(724)
19−7/16
(494)
23−1/2
(597)
4−1/4
(108)
11−5/8 (295)
Right
9−3/4 (248)
Left
4−7/8 (124) Right
2−1/4 (57) Left
40
(1016)
4
(102)
1−15/16 (49)
23
(584)
14**
(356)
9/16
(14)
16
(406)
14−3/4
(375)
5/8 (16)
23-3/4 (603)
25 (635)
GAS PIPING INLET
(Either Side)
EXHAUST AIR OUTLET
(Either Side)
CONDENSATE
TRAP CONNECTION
(Either Side)
2−1/2
(64)
18-3/4 (476)
1
OPTIONAL
EXTERNAL
SIDE RETURN
AIR FILTER KIT
(Either Side)
1
OPTIONAL
EXTERNAL
SIDE RETURN
AIR FILTER KIT
(Either Side)
*OPTIONAL
RETURN CUTOUT
(Either Side)
1
Optional External Side Return Air Filter Kit is not for use
with the optional RAB Return Air Base.
*NOTE − 60C and 60D size units installed in upflow applica-
tions that require air volumes over 1800 cfm (850 L/s) must
have one of the following:
1. Single side return air with transition, to accommodate
20 x 25 x 1 in. (508 x 635 x 25 mm) air filter.
Required to maintain proper air velocity.
2. Single side return air with optional RAB Return Air Base
3. Bottom return air.
4. Return air from both sides.
5. Bottom and
one side return air.
Refer to Engineering Handbook for additional information.
**Consider sizing requirements for optional IAQ equipment
before cutting side return opening.
COMBUSTION AIR INTAKE
(Either Side)
6−1/2
(165)
4−1/8
(103)
6−3/4
(171)
3−1/8
(79)
Model No.
A B C
in. mm in. mm in. mm
G43UF−24B−045
G43UF−24B−070
G43UF−36B−070
17−1/2 446 16−3/8 416 16 406
G43UF−36C−090
G43UF−36C−090H
G43UF−48C−090
G43UF−48C−110
G43UF−48C−110H
G43UF−60C−110
21 533 19−7/8 504 19−1/2 495
G43UF−60D−135 24−1/2 622 23−3/8 546 23 584

Other manuals for Lennox G43UF

Related product manuals