EasyManua.ls Logo

Lennox KGB036S4B

Lennox KGB036S4B
76 pages
To Next Page IconTo Next Page
To Next Page IconTo Next Page
To Previous Page IconTo Previous Page
To Previous Page IconTo Previous Page
Loading...
Page 67
Economizer Operation
The occupied time period is determined by the thermostat
or energy management system.
Outdoor Air Not Suitable:
During the unoccupied time period dampers are closed.
During the occupied time period a cooling demand will open
dampers to minimum position and mechanical cooling
functions normally.
During the occupied time period dampers will open to DCV
MAX when IAQ reading is above setpoint (regardless of
thermostat demand or outdoor air suitability).
Outdoor Air Suitable:
See table 27 for economizer operation with a standard two-
stage thermostat.
During the occupied period, dampers will open to DCV
MAX when IAQ reading is above setpoint (regardless of
thermostat demand or outdoor air suitability). DCV MAX will
NOT override damper full-open position. When an R1
mixed air sensor for modulating dampers is installed, DCV
MAX may override damper free cooling position when oc
cupancy is high and outdoor air temperatures are low. If R1
senses discharge air temperature below 45_F (7_C),
dampers will move to minimum position until discharge air
temperature rises to 48_F (9_C).
B-Outdoor Air Dampers
Optional manual and motorized outdoor air dampers pro
vide fresh outdoor air. The motorized damper assembly
opens to minimum position during the occupied time peri
od and remains closed during the unoccupied period.
Manual damper assembly is set at installation and re
mains in that position.
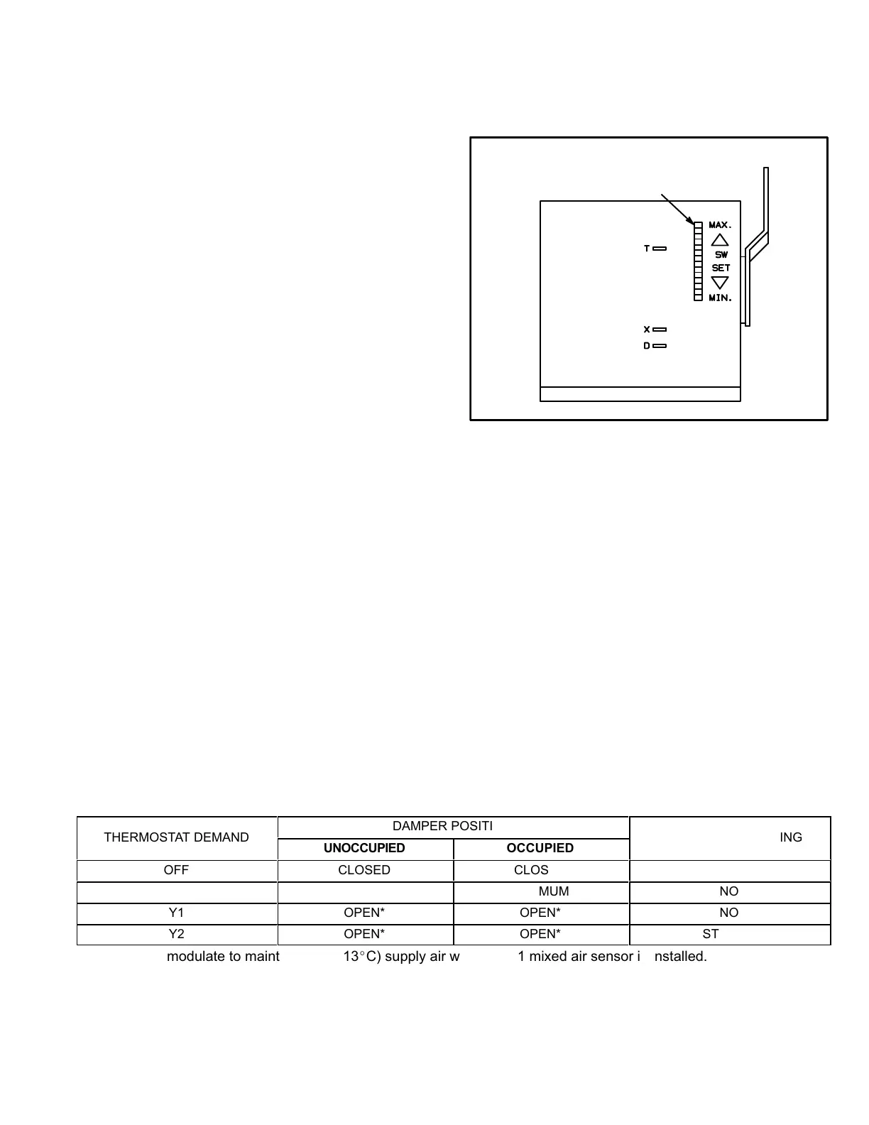
Set damper minimum position in the same manner as
economizer minimum position. Adjust motorized damper
position using the thumbwheel on the damper motor. See
figure 29. Manual damper fresh air intake percentage can
be determined in the same manner.
FIGURE 29
DAMPER MOTOR
THUMBWHEEL
F-Power Exhaust Relay K65
(power exhaust units)
Power exhaust relay K65 is a DPDT relay with a 24VAC
coil. K65 is used in all KGB units equipped with the op
tional power exhaust dampers. K65 is energized by the
economizer enthalpy control A6, after the economizer
dampers reach 50% open (adjustable) When K65 clos
es, exhaust fan B10 is energized.
G-Power Exhaust Fans
T1PWRE10A available for KGB 3, 4 and 5 ton units and
T1PWRE10N available for 6 and 7-1/2 ton units, provide ex
haust air pressure relief and also run when return air
dampers are closed and supply air blowers are operating.
See figure 30 and installation instructions for more detail.
TABLE 27
ECONOMIZER OPERATION
OUTDOOR AIR IS SUITABLE FOR FREE COOLING -- FREE COOL LED “ON”
ÁÁÁÁÁÁÁÁÁÁ
ÁÁÁÁÁÁÁÁÁÁ
ÁÁÁÁÁÁÁÁÁÁ
THERMOSTAT DEMAND
ÁÁÁÁÁÁÁÁÁÁÁÁÁÁÁÁÁ
ÁÁÁÁÁÁÁÁÁÁÁÁÁÁÁÁÁ
DAMPER POSITION
ÁÁÁÁÁÁÁÁÁÁÁ
ÁÁÁÁÁÁÁÁÁÁÁ
ÁÁÁÁÁÁÁÁÁÁÁ
MECHANICAL COOLING
ÁÁÁÁÁÁÁÁÁ
ÁÁÁÁÁÁÁÁÁ
UNOCCUPIED
ÁÁÁÁÁÁÁÁÁ
ÁÁÁÁÁÁÁÁÁ
OCCUPIED
ÁÁÁÁÁÁÁÁÁÁ
ÁÁÁÁÁÁÁÁÁÁ
OFF
ÁÁÁÁÁÁÁÁÁ
ÁÁÁÁÁÁÁÁÁ
CLOSED
ÁÁÁÁÁÁÁÁÁ
ÁÁÁÁÁÁÁÁÁ
CLOSED
ÁÁÁÁÁÁÁÁÁÁÁ
ÁÁÁÁÁÁÁÁÁÁÁ
NO
ÁÁÁÁÁÁÁÁÁÁ
ÁÁÁÁÁÁÁÁÁÁ
G
ÁÁÁÁÁÁÁÁÁ
ÁÁÁÁÁÁÁÁÁ
CLOSED
ÁÁÁÁÁÁÁÁÁ
ÁÁÁÁÁÁÁÁÁ
MINIMUM
ÁÁÁÁÁÁÁÁÁÁÁ
ÁÁÁÁÁÁÁÁÁÁÁ
NO
ÁÁÁÁÁÁÁÁÁÁ
ÁÁÁÁÁÁÁÁÁÁ
Y1
ÁÁÁÁÁÁÁÁÁ
ÁÁÁÁÁÁÁÁÁ
OPEN*
ÁÁÁÁÁÁÁÁÁ
ÁÁÁÁÁÁÁÁÁ
OPEN*
ÁÁÁÁÁÁÁÁÁÁÁ
ÁÁÁÁÁÁÁÁÁÁÁ
NO
ÁÁÁÁÁÁÁÁÁÁ
ÁÁÁÁÁÁÁÁÁÁ
Y2
ÁÁÁÁÁÁÁÁÁ
ÁÁÁÁÁÁÁÁÁ
OPEN*
ÁÁÁÁÁÁÁÁÁ
ÁÁÁÁÁÁÁÁÁ
OPEN*
ÁÁÁÁÁÁÁÁÁÁÁ
ÁÁÁÁÁÁÁÁÁÁÁ
STAGE 1
*Dampers will modulate to maintain 55_F (13_C) supply air when an R1 mixed air sensor is installed.

Table of Contents

Related product manuals