EasyManua.ls Logo

Lennox LCH 036

Lennox LCH 036
140 pages
To Next Page IconTo Next Page
To Next Page IconTo Next Page
To Previous Page IconTo Previous Page
To Previous Page IconTo Previous Page
Loading...
Page 6
LGH036−360 Agency
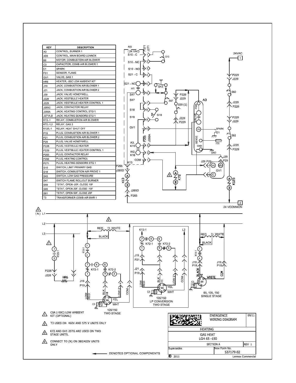
TYPICAL GAS HEAT SCHEMATIC
This schematic is typical. See the wiring schematic on the unit for actual unit wiring.

Related product manuals