EasyManua.ls Logo

Lennox LGH094U - Wiring Diagram - LGH150 H Constant Supply Air; LGH150 H - Y Constant Supply Air

Lennox LGH094U
92 pages
Print Icon
To Next Page IconTo Next Page
To Next Page IconTo Next Page
To Previous Page IconTo Previous Page
To Previous Page IconTo Previous Page
Loading...
Page 73
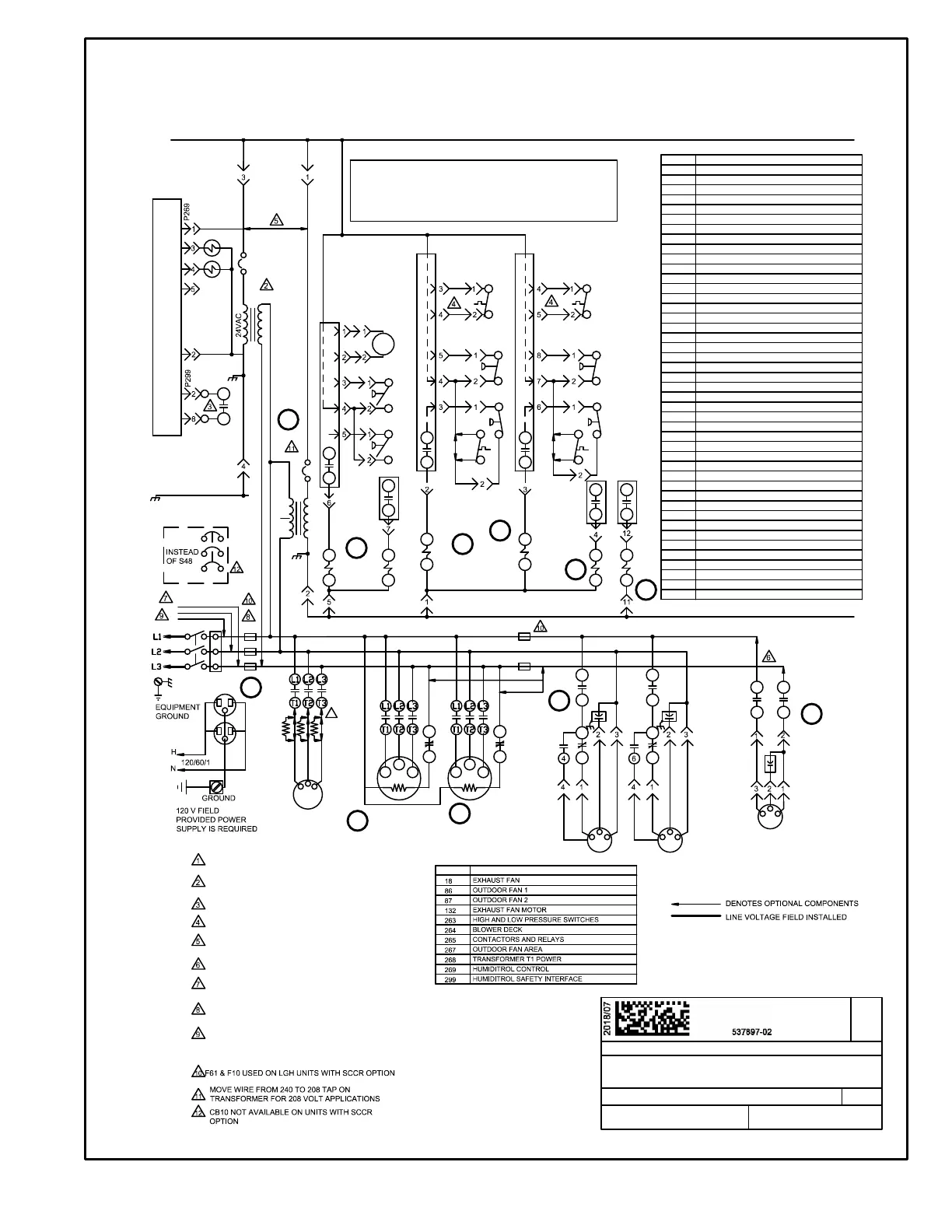
LGH150H - Y - CONSTANT SUPPLY AIR, BELT DRIVE BLOWER
1
3
4
5
6
8
9
10
11
13
14
New Form No.
Supersedes
WIRING DIAGRAM
LCH/LGH 150H - Y
07/18
COOLING
SECTION B REV 0
537897-01
537897-02
NOTE - IF ANY WIRE IN THIS APPLIANCE IS REPLACED
IT MUST BE REPLACED WITH WIRE OF LIKE SIZE,
RATING, TERMINATION AND INSULATION THICKNESS.
DISCONNECT ALL POWER BEFORE SERVICING !
K3
A
B
K65
A
B
S84
A55
P265
A55
P265
J265E
J265B
J11
KEY
COMPONENT
A55
PANEL, MAIN
B1 COMPRESSOR 1
B2
COMPRESSOR 2
B3
MOTOR, BLOWER
B4
MOTOR, OUTDOOR FAN 1
B5
MOTOR, OUTDOOR FAN 2
B10
MOTOR, EXHAUST FAN
C1
CAPACITOR, OUTDOOR FAN 1
C2
CAPACITOR, OUTDOOR FAN 2
C6
CAPACITOR, EXHAUST FAN
CB8
CIRCUIT BREAKER, TRANSFORMER T1
HR1
HEATER, COMPRESSOR 1
HR2
HEATER, COMPRESSOR 2
J11
JACK, GFI RECEPTICLE
K1,1 CONTACTOR, COMPRESSOR 1
K2,1 CONTACTOR, COMPRESSOR 2
K3, 1 CONTACTOR, BLOWER
K10,1,2 RELAY, OUTDOOR FAN 1
K651,2 RELAY, EXHAUST FAN
K68,1,2 RELAY, OUTDOOR FAN 2
RT17
SENSOR, OUTSIDE AIR TEMPERATURE
S4
SWITCH, LIMIT HI PRESS COMP 1
S5
SWITCH, LIMIT HI TEMP COMPRESSOR 1
S7
SWITCH, LIMIT HI PRESS COMPRESS 2
S8
SWITCH, LIMIT HI TEMP COMPRESSOR 2
S11
SWITCH, LOW PRESS, LOW AMBIENT KIT COMP 1
S42
SWITCH, OVERLOAD RELAY BLOWER MOTOR
S48
SWITCH, DISCONNECT
S49
SWITCH, FREEZESTAT COMP 1
S50
SWITCH, FREEZESTAT COMP 2
S84
SWITCH, LOW PRESS, LOW AMBIENT KIT COMP 2
S87
SWITCH, LOW PRESS, COMPRESSOR 1
S88
SWITCH, LOW PRESS, COMPRESSOR 2
T1
TRANSFORMER, CONTROL
B3
K3-1
S42
1
S42 USED ON "M" VOLTAGE UNITS AND UNITS WITH
HIGH EFFICIENCY MOTORS
S48
J265C
B10
C6
K65-2
9
6
J18
P18
K65-1
7
4
K11
B1
HR1
K21
B2
HR2
B4
K10-1
7
4
C1
J132
P132
S11
K68-1
7
4
C2
T1
GND
CB8
K1
A
B
B
J265A
J265C
J268
P268
P268
J268
S4
S87
J263B
P265
J265A
J267A
RT17
S49
J264B
K2
A
B
J265A
S7
S88
J263C
S50
J264B
K10
A
B
P265
J265C
P265
J265E
24 VAC POWER
24 VAC COMMON
A55
P267
P265
A55
P265
A55
T43
T43
L14
L30
DI 4
RSV
R
T43
CB31
L14
K251
ONLY IN UNITS WITH HUMIDITROL OR PHASE AND
VOLTAGE DETECTION OPTION
J269
J299D
EXTERNAL HUMIDITROL CONTACTS
A55
P264
P265
P263
A55
P264
P265
P263
S49 AND S50 ARE PART OF 5VDC CIRCUIT
J268
P268
P268
J268
GND
24 VAC COMMON
GND
J268-1,-3 AND J268-2,-4 ARE CONNECTED ON UNITS
WITHOUT HUMIDITROL OR PHASE DETECTION OPTIONS
B10 IS NOT USED ON UNITS WITH ERV
USED ON UNITS WITH ERV SINGLE POINT
POWER. SEE ERV DIAGRAM
F4/F61
F4
FUSE, UNIT
USED ON LCH AND UNITS WITH ERV SINGLE
POINT POWER ONLY
J/P JACK/PLUG DESCRIPTION
T43
TRANSFORMER, HUMIDITROL
CB10
TB2
CB31
K2511,2
TB2
CB10
RELAY, 2 SPEED MOTOR
CIRCUIT BREAKER, UNIT MAIN DISCONNECT
CIRCUIT BREAKER, TRANSFORMER T43
TERMINAL STRIP, UNIT
NOTE: FOR USE WITH COPPER CONDUCTORS
ONLY. REFER TO UNIT RATING PLATE FOR
MINIMUM CIRCUIT AMPACITY AND MAXIMUM
OVERCURRENT PROTECTION SIZE.
K68
A
B
S8
S5
K2511
7
1
J86
P86
B5
K2512
9
3
J87
P87
L14
VALVE,SOLENOID REHEAT COIL 1
L30
VALVE,SOLENOID REHEAT COIL 2
K2-2
C
NC
K1-2
C
NC
F10
F10
FUSE, OUTDOOR FAN MOTOR
F61
FUSE, SCCR OPTION UNIT

Other manuals for Lennox LGH094U

Related product manuals