EasyManua.ls Logo

Lennox LGH240H

Lennox LGH240H
120 pages
To Next Page IconTo Next Page
To Next Page IconTo Next Page
To Previous Page IconTo Previous Page
To Previous Page IconTo Previous Page
Loading...
Page 102
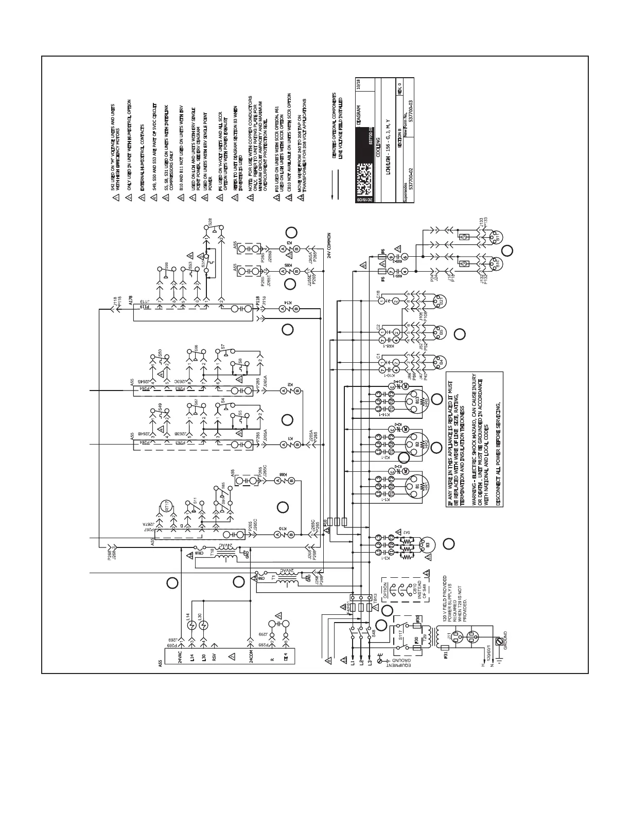
XI-Wiring Diagrams and Sequence of Operation
LGH156 UNIT DIAGRAM
1
11
10
12
15
1
1
2
3
5
6
8
9
4
14

Other manuals for Lennox LGH240H

Related product manuals