EasyManua.ls Logo

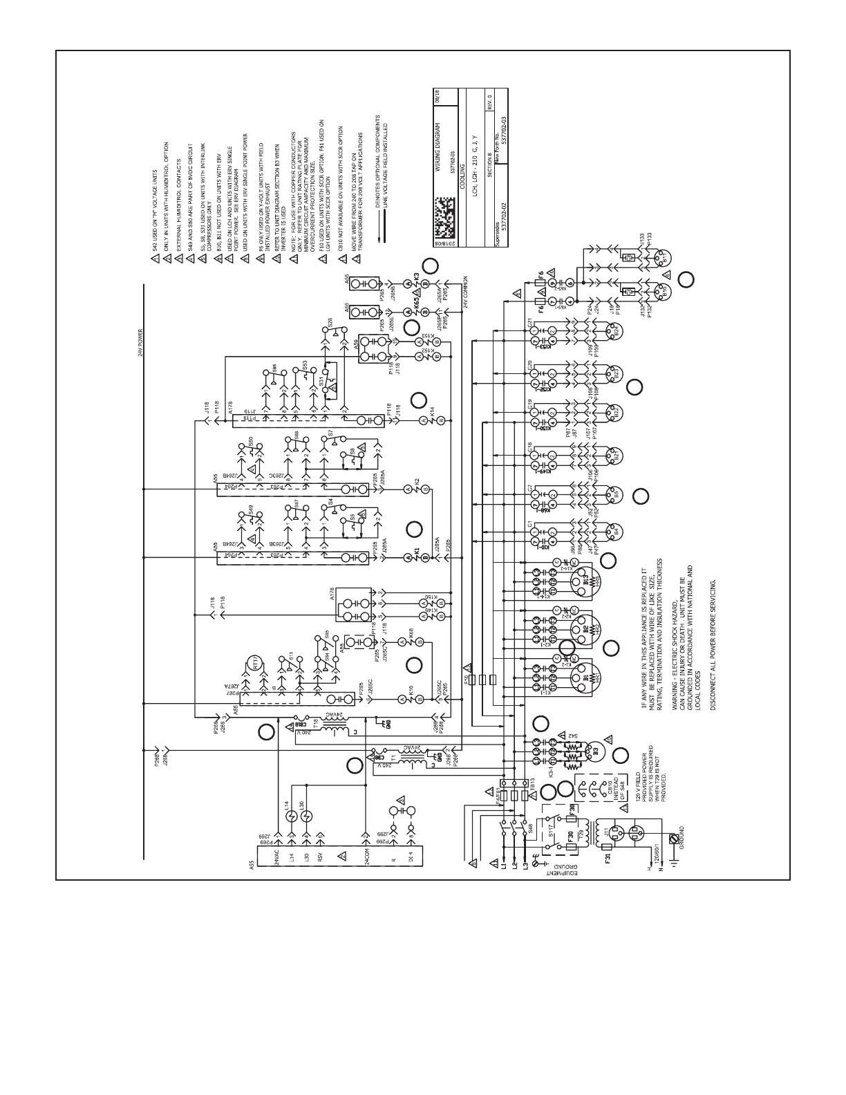
Lennox LGH240H - LGH210 UNIT DIAGRAM

Lennox LGH240H
120 pages
Print Icon
To Next Page IconTo Next Page
To Next Page IconTo Next Page
To Previous Page IconTo Previous Page
To Previous Page IconTo Previous Page
Loading...
Page 106
LGH210 UNIT DIAGRAM
10
1
11
12
15
1
2
3
4
5
6
8
9
4
14
1
11

Other manuals for Lennox LGH240H

Related product manuals