EasyManua.ls Logo

Lennox LGH240H - Page 24

Lennox LGH240H
120 pages
Print Icon
To Next Page IconTo Next Page
To Next Page IconTo Next Page
To Previous Page IconTo Previous Page
To Previous Page IconTo Previous Page
Loading...
Page 24
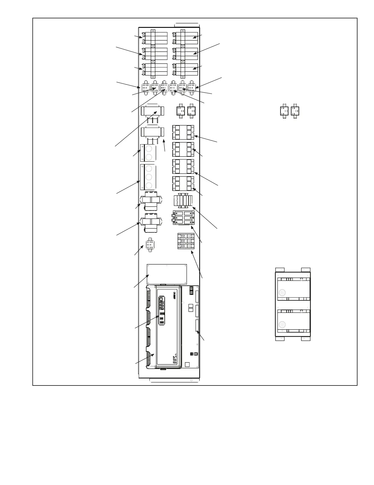
CONTROL BOX PARTS ARRANGEMENT
SECOND SECTION
HEAT RELAY (K19)
OUTDOOR
FAN RELAY
1 (K10)
OUTDOOR
FAN RELAY
2 (K68)
OUTDOOR FA
N
CAPACITOR 6
(C21)
OUTDOOR FAN
CAPACITOR 5
(C20)
COMBUSTION AIR
INDUCER (K13)
COMPRESSOR
1 CONTACTOR
(K1)
COMPRESSOR
2 CONTACTOR
(K2)
COMPRESSOR
3 CONTACTOR
(K14)
COMPRESSOR
4 CONTACTOR
(K146)
BLOWER MOTOR
OVERLOAD RELAY
(S42)
BLOWER CONTACTOR
RELAY (K3)
TERMINAL
BLOCK (TB13)
BURNER 2
CONTROL
(A12)
BURNER 1
CONTROL
(A3)
UNIT
CONTROLLER
(A55, M2 SHOWN)
CONTROL
TRANSFORMER
(T1)
TRANSFORMER
C.A.I. (T13) OR
UVC (T49)
TRANSFORMER
C.A.I. (T3)
POWER EXHAUST
RELAY (K65)
(PED ONLY )
OUTDOOR FAN
MOTOR FUSE
BLOCK (F10)
CONTACTOR
TRANSFORMER
(T18)
COMPRESSORS 3 & 4
CONTROL MODULE
C2 (A59)
OUTDOOR
FAN 4 RELAY
(K150)
OUTDOOR FAN
CAPACITOR 4
(C19)
OUTDOOR FA
N
CAPACITOR 3
(C18)
OUTDOOR FAN
CAPACITOR 1
(C1)
OUTDOOR FAN
CAPACITOR 2
(C2)
EXHAUST FAN
MOTOR FUSE
BLOCK (F6)
OUTDOOR
FAN 6 RELAY
(K153)
OUTDOOR
FAN 5 RELAY
(K152)
OUTDOOR
FAN RELAY
3 (K149)
SEE
DETAIL A
DETAIL A
THERMOSTAT
CONNECTIONS
(J297)
CONTROLLER
DISPLAY
FIGURE 3

Other manuals for Lennox LGH240H

Related product manuals