EasyManua.ls Logo

Lennox LGH240H - D-GAS HEAT COMPONENTS; Safety Warnings for Gas Heat Components; Burner Ignition Control A3, A12

Lennox LGH240H
120 pages
To Next Page IconTo Next Page
To Next Page IconTo Next Page
To Previous Page IconTo Previous Page
To Previous Page IconTo Previous Page
Loading...
Page 41
D-GAS HEAT COMPONENTS
See SPECIFICATIONS tables or unit nameplate for Btuh
capacities. Units are equipped with two identical gas heat
sections (gas heat section one and gas heat section two).
Flexible pipe will feed supply gas to both sections. If for

then turn additional 1/4” with a wrench for metal to metal
seal (do not overtighten).
NOTE - Do not use thread sealing compound on ex pipe
are connections.
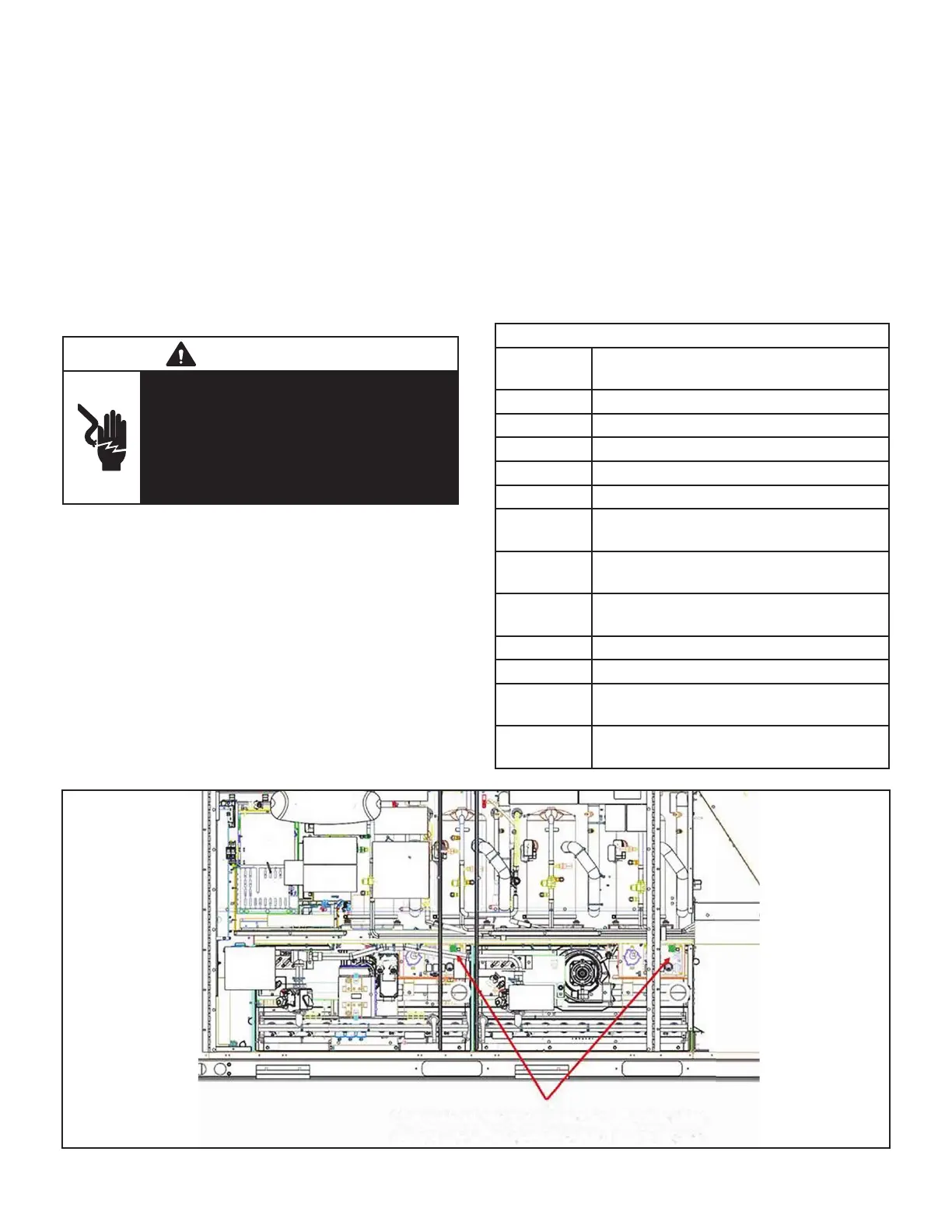
1-Control Box Components
A3, A12, A55, T3, T13, K13 and K19
WARNING
Shock hazard. Spark related components
contain high voltage which can cause
personal injury or death. Disconnect
power before servicing. Control is not
    
result. If control is inoperable, simply
replace the entire control.
         
controls A3 and A12, A55 Unit Controller, combustion air
blower transformers T3 and T13, combustion air blower
 -
scription of the components see section I-A. A more de-
tailed description of burner controls A3 and A12 is given
below.
Burner Ignition Control A3, A12
The ignition controls are located in the control box and are
manufactured by UTEC. See table 8 for LED codes.
The ignition control provides three main functions: gas
        
        
attempt sequence provides three trials for ignition before
locking out. The lockout time for the control is 5 minutes.
After lockout, the ignition control automatically resets
and provides three more attempts at ignition. Manual re-
set after lockout requires breaking and remaking power



         
See below for ignition control location.
TABLE 8
UTEC
LED
Flashes
Indicates
Slow Flash Control ok, no call for heat
Fast Flash Control ok, call for heat present
󰀨 Internal control fault or no power
Steady On Control internal failure
1 Flash Rollout open
2 Flashes
Limit open or lockout from too many limit
opens during one call for heat
3 Flashes
Pressure switch open with inducer on/
󰀨
4 Flashes


5 Flashes Flame sensed out of sequence
6 Flashes 󰀨
7 Flashes
Gas valve relay failure. (Not yet imple-
mented)
8 Flashes
Lockout due to too many pressures
switch openings during on call for heat.
Observation port for diagnostic LED on
Ignition control cover.
B
ehind the mullions.

Other manuals for Lennox LGH240H

Related product manuals