EasyManua.ls Logo

Lennox MCFA024S4-*P - Lennox Ducted Indoor Unit Specifications; MMDA Indoor Unit Specifications and Blower Data

Lennox MCFA024S4-*P
24 pages
To Previous Page IconTo Previous Page
To Previous Page IconTo Previous Page
Loading...
24
HE AT _2
PAN HEATER
IND OO R C OIL
OU TL ET
TE MP . S EN SO R
HE AT _1
HE AT _2
HE AT _1
AC CURRENT DETECTOR
COMPRESSOR DISCHARGE
TEMP. SENSOR
OUTDOOR COIL
TEMP. SENSOR
OUTDOOR
TEMP. SENSOR
INDOOR COIL OUTLET
TEMP. SENSOR
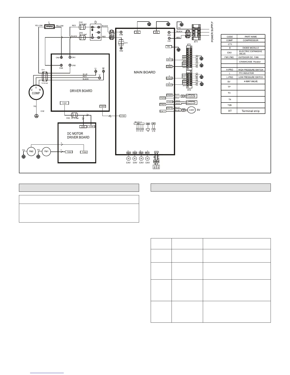
Figure 33. MLA036S4M-*P Outdoor Unit Wiring Diagram
Unit Start-Up
IMPORTANT
Units should be energized 24 hours before unit
start-up to prevent compressor damage as a result
of slugging.
1. Inspect all factory-installed and eld-installed wiring
for loose connections.
2. Verify that the manifold gauge set is connected.
3. Add additional refrigerant charge if required before
opening valves and while system is still under a
vacuum.
4. Open the liquid and gas line master valves and each
individual port’s service valve to release the refrigerant
charge contained in outdoor unit into the system.
5. Replace the stem caps and tighten to the value listed
in “Table 1. Torque Requirements” on page 5.
6. Check voltage supply at the outdoor unit terminal strip.
The voltage must be within the range listed on the
unit’s nameplate. If not, do not start the equipment
until you have consulted with the power company and
the voltage condition has been corrected.
7. Refer to the included user guide to operate the system
using the provided remote control.
8. Visually check for binding of both indoor and outdoor
fans.
Refrigerant Charge
The outdoor unit is factory-charged with refrigerant.
Calculate the additional refrigerant required according to
the length of the liquid pipe (one way) between the outdoor
unit and indoor unit connections.
Be sure to add the proper amount of additional refrigerant.
Failure to do so may result in reduced performance.
Table 6. Refrigerant Charge
System
Pre-charge
Pipe Length
Amount of Refrigerant to add
Two-port 50 ft. (15 m)
0.16 oz ((L1 ft + L2 ft) - 50 ft)
0.005 kg ((L1 m + L2 m) - 15 m)
Three-
port
75 ft. (23 m)
0.16 oz ((L1 ft + L2 ft + L3 ft) - 75 ft)
0.005 kg ((L1 m + L2 m + L3 m) - 23
m)
Four-port 100 ft. (30 m)
0.16 oz ((L1 ft + L2 ft + L3 ft + L4 ft)
- 100 ft)
0.005 kg ((L1 m + L2 m + L3 m + L4
m) - 30 m)
Five-port 125 ft. (38 m)
0.16 oz ((L1 ft + L2 ft + L3 ft + L4 ft +
L5 ft) - 125 ft)
0.005 kg ((L1 m + L2 m + L3 m + L4
m + L5 m) - 38 m)

Other manuals for Lennox MCFA024S4-*P

Related product manuals