EasyManua.ls Logo

Lennox ML193UH070XE36B

Lennox ML193UH070XE36B
54 pages
To Next Page IconTo Next Page
To Next Page IconTo Next Page
To Previous Page IconTo Previous Page
To Previous Page IconTo Previous Page
Loading...
Page 26
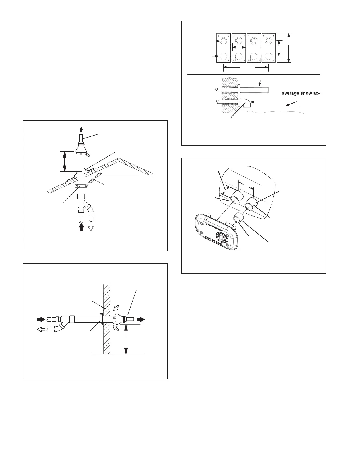
7 - If intake and exhaust piping must be run up a side
wall to position above snow accumulation or other
obstructions, piping must be supported. At least
one bracket must be used within 6” from the top of
the elbow and then every 24” (610mm) as shown
in FIGURE 41, to prevent any movement in any
direction. When exhaust and intake piping must be
run up an outside wall, the exhaust piping must be
terminated with pipe sized per TABLE 8.The intake
piping may be equipped with a 90° elbow turndown.
Using turn-down will add 5 feet (1.5m) to the
equivalent length of the pipe.
8 - A multiple furnace installation may use a group of up
to four terminations assembled together horizontally,
as shown in FIGURE 39.
DIRECT VENT CONCENTRIC ROOFTOP TERMINATION
71M80, 69M29 or 60L46 (US)
44W92 or 44W93 (Canada)
Minimum
Above Average
Snow
Accumulation
SHEET METAL STRAP
(Clamp and sheet metal strap
must be field installed to support
the weight of the termination kit.)
FLASHING
(Not Furnished)
CLAMP
FIELD-PROVIDED
REDUCER MAY BE REQUIRED
TO ADAPT DIFFERENT VENT
PIPE SIZE TO TERMINATION
INTAKE
Accelerator not required for
3” concentric
12” (305mm)
FIGURE 37
12” (305mm) Min.
above grade or
average snow ac
cumulation.
DIRECT VENT CONCENTRIC WALL TERMINATION
71M80, 69M29 or 60L46 (US)
44W92 or 44W93 (Canada)
INTAKE
AIR
EXHAUST
AIR
INTAKE
AIR
INTAKE
AIR
EXHAUST
AIR
OUTSIDE
WALL
GRADE
CLAMP
(Not Furnished)
FIELD-PROVIDED
REDUCER MAY BE
REQUIRED TO ADAPT
DIFFERENT VENT PIPE
SIZE TO TERMINATION
Accelerator not required
for 3” concentric
FIGURE 38
EXHAUST
VENT
INTAKE
AIR
5-1/2”
(140mm)
Front View
12”
(305mm)
5”
(127mm)
18” MAX.
(457mm)
EXHAUST VENT
INTAKE
AIR
OPTIONAL VENT TERMINATION FOR MULTIPLE UNIT
INSTALLATION OF DIRECT VENT WALL TERMINATION KIT
(30G28 or 81J20)
Inches (mm)
Side View
12” (305mm) Min.
above grade or
cumulation.
optional intake elbow
FIGURE 39
2” EXTENSION FOR 2” PVC
PIPE1” EXTENSION FOR 3”
PVC PIPE
1-1/2” ACCELERATOR
FURNACE
EXHAUST
PIPE
FURNACE
INTAKE
PIPE
4''
GLUE EXHAUST
END FLUSH INTO
TERMINATION
FLAT
SIDE
FLUSH-MOUNT SIDE WALL TERMINATION KIT
51W11 (US) or 51W12 (Canada)
FIGURE 40

Other manuals for Lennox ML193UH070XE36B

Related product manuals