EasyManua.ls Logo

Lennox SLP98UHV SERIES - Minimum Vent Pipe Lengths

Lennox SLP98UHV SERIES
69 pages
To Next Page IconTo Next Page
To Next Page IconTo Next Page
To Previous Page IconTo Previous Page
To Previous Page IconTo Previous Page
Loading...
Page 42
12" max
of straight pipe
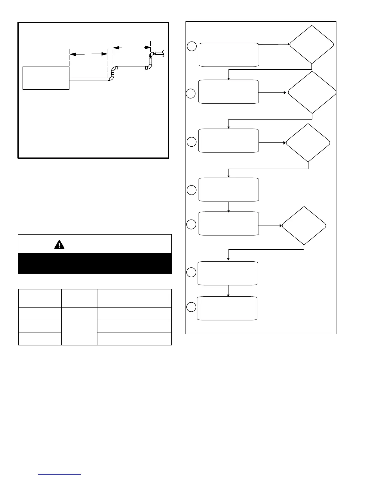
FIGURE 20
Exhaust Pipe
Horizontal Application
12" Min.
NOTE − Exhaust pipe MUST be glued to furnace exhaust fittings.
NOTE All horizontal runs of exhaust pipe must slope back to-
ward unit. A minimum of 1/4" (6mm) drop for each 12" (305mm)
of horizontal run is mandatory for drainage.
NOTE − Exhaust piping should be checked carefully to make
sure there are no sags or low spots.
Horizontal Application
NOTE − The exhaust collar on all models is sized to ac-
commodate 2" Schedule 40 vent pipe. When vent pipe
which is larger than 2" must be used in an upflow applica-
tion, a 2" elbow must be applied at the exhaust collar in or-
der to properly transition to the larger diameter vent pipe.
This elbow must be added to the elbow count used to de-
termine acceptable vent lengths. Contact the Application
Department for more information concerning sizing of
vent systems which include multiple pipe sizes.
IMPORTANT
Do not use screens or perforated metal in exhaust or
intake terminations. Doing so will cause freeze−ups
and may block the terminations.
TABLE 22
MINIMUM VENT PIPE LENGTHS
SLP98UHV
MODEL
MIN. EQUIV.
VENT
LENGTH
EXAMPLE
070, 090
15 ft.*
5 ft. plus 2 elbows of 2", 2−1/2",
3" or 4" diameter pipe
110**
5 ft. plus 2 elbows of 2−1/2" 3" or
4" diameter pipe
135***
5 ft. plus 2 elbows of 3" or 4"
diameter pipe
*Any approved termination may be added to the minimum equivalent length
listed.
1
2
3
4
5
6
070, 090, 110
or 135 btuh
Which termination?
Standard or
Concentric?
See table
21
Intake or
exhaust?
Which needs
most elbows?
How many?
2", 2 1/2", 3"
Desired pipe size?
Use table 23 to
find max pipe
length
FIGURE 21
What is the altitude?
7
Furnace capacity?

Table of Contents

Other manuals for Lennox SLP98UHV SERIES

Related product manuals